- Tylko online
Masz pytania? Chciałbyś negocjować cenę
Zadzwoń! 577 575 011
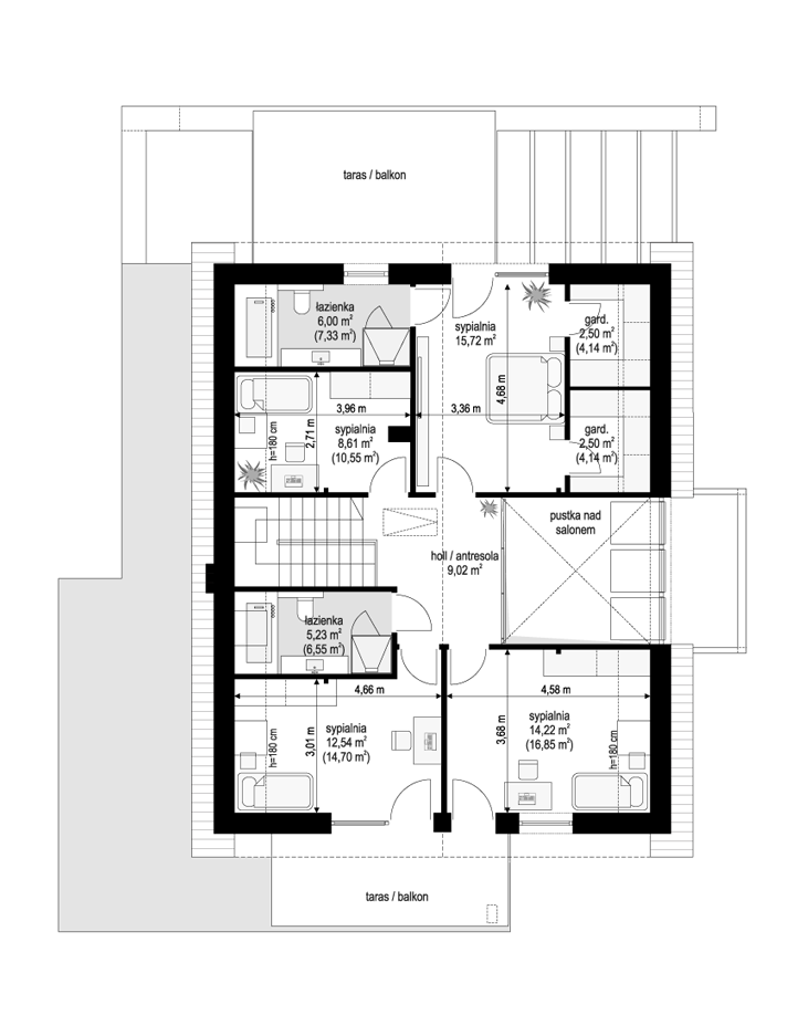
Projekt domu Amber jest to projekt parterowego domu jednorodzinnego z poddaszem użytkowym przeznaczonego dla 4-6 osobowej rodziny z serii „Amber”. Wariant „Amber 4” to wersja z oryginalną drewnianą elewacją ścian zewnętrznych. Dom zaprojektowano na planie prostokąta, z dobudowaną parterową bryłą garażu wstawioną w rdzeń budynku przykryty dwuspadowym dachem. Drewniana okładzina ścian, została skomponowana z szarymi i grafitowymi wstawkami, słupami, glifami i ramami okien. Od frontu dodatkowo zastosowano kontrastową białą płytę nad garażem i podestem wejściowym, a od strony ogrodu - białą konstrukcję zadaszenia tarasu. Taka kolorystyka i kompozycja materiałów tworzy niepowtarzalny styl budynku. W domu z każdej strony królują duże przeszklenia otwierające wnętrze na otaczający ogród. Reprezentacyjne drzwi wejściowe w elewacji frontowej z bocznymi naświetlami zapraszają do wnętrza. Wewnątrz na kondygnacji parteru zaprojektowano przestrzeń dzienną - z salonem, jadalnią, centralnym holem i frontowo usytuowaną kuchnia z wyspą. Salon pięknie otwiera się na taras i ogród szerokim przeszkleniem i wysokimi oknami jadalni z pustką z antresolą. Przestronna kuchnia została doświetlona pięknym narożnym oknem od frontu budynku. Na parterze przewidziano dodatkowy pokój z łazienką, oraz cześć gospodarczą z garażem i kotłownią. Poddasze to cztery pokoje sypialne, oraz dwie łazienki. Sypialnia rodziców jest oddzielnym apartamentem z własną łazienką i garderobą. Ścianki kolankowe zaprojektowano na tyle wysokie, aby maksymalnie umożliwić korzystanie z całości powierzchni podłóg. Budynek ma atrakcyjną sylwetkę zewnętrzną, funkcjonalne i efektowne wnętrze. Dzięki pustce nad częścią salonu i antresoli poddasza, dom zyskuje dodatkowe wrażenie przestronności. Budynek zaprojektowano jako energooszczędny - zastosowano tutaj nowoczesne ciepłe materiały i instalacje, dzięki czemu koszt eksploatacji budynku nie będzie wysoki. Dom ma dość prostą konstrukcje - powinien być łatwy w budowie. „Amber 4” to doskonała propozycja dla Inwestorów marzących o oryginalnym domu dla siebie - z rzucającą się w oczy ciekawą architekturą, oraz funkcjonalnym sensownym wnętrzu. Zapraszamy do zapoznania się ze wszystkimi domami z tej serii: https://www.mgprojekt.com.pl/amber, https://www.mgprojekt.com.pl/amber-2, https://www.mgprojekt.com.pl/amber-3, https://www.mgprojekt.com.pl/amber-4.
