- Tylko online
Masz pytania? Chciałbyś negocjować cenę
Zadzwoń! 577 575 011
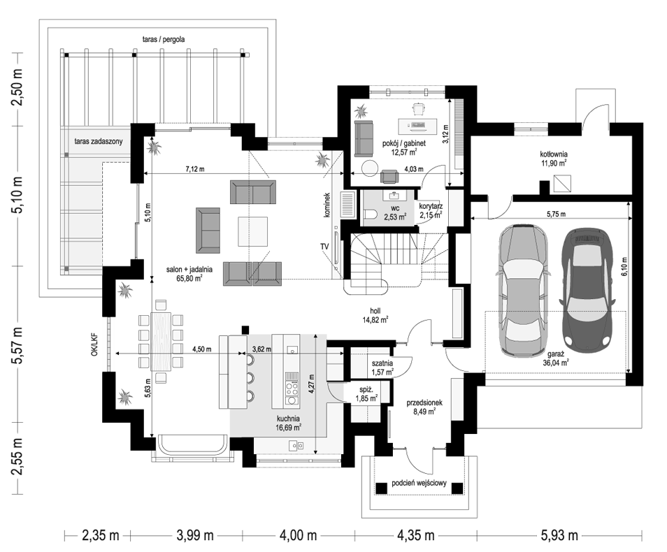
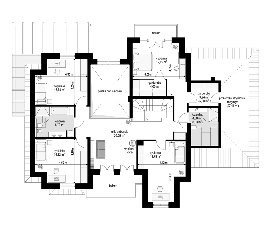
Projekt domu Willa Siedziba 3 to nowa odsłona cieszącego się uznaniem projektu Willa Siedziba. Nowy wariant to zmniejszony o 50 m² dom, ze zwężoną o 5 metrów szerokością bryły, dzięki czemu budynek zmieści się na węższej 26-metrowej działce. Willa Siedziba 3 to reprezentacyjna miejska willa, nawiązująca swoją formą i stylistyką do wczesno dwudziestowiecznych rezydencji, jakie możemy spotkać do dziś w prestiżowych willowych dzielnicach większych miast. Dom ma powierzchnię użytkową wynoszącą ca 240 m² i jest przeznaczony dla 4- 6-osobowej rodziny. Bryłę budynku zaprojektowano na prostokątnym planie i składa się z dwóch części - wyżej mieszkalnej, przykrytej czterospadowym dachem, oraz niższej bryły garażu. Dach budynku został osadzony na wysokości umożliwiającej interpretację tego budynku jako dom z poddaszem użytkowym. Główna bryła urozmaicona została czterema masywnymi lukarnami, skrywającymi w swojej szerokości pokoje górnej kondygnacji. Od strony elewacji fontowej willi mamy reprezentacyjne wejście z szerokimi drzwiami z naświetlami. Następnie dwa wykusze - kuchenny i jadalni - oba o innej formie, ale harmonizujące ze sobą. Dalej balkon z ozdobną balustradą, dostępny z holu-saloniku piętra, oraz wspomniane dwie lukarny pokoi piętra spinające całą kompozycję bryły. Trochę wycofany garaż nie narzuca się i pozwala znaleźć miejsce na swobodne parkowanie aut przed drzwiami garażowymi. Strona ogrodowa to jeszcze bardziej urozmaicona fasada. Mamy tutaj wystające lukarny pięter, między nimi dwupiętrowe okno salonu, balkon sypialni master, oraz przepiękną pergolę przykrywającą częściowo taras. Wnętrze domu na parterze to przede wszystkim duża przestrzeń dzienna połączonych pomieszczeń salonu, kuchni i jadalni, tworząca razem ponad 80-metrową powierzchnię. Dodatkowym urozmaiceniem jest tutaj otwarcie przestrzenne - pustka nad salonem, połączona z antresolą piętra, gdzie znajduje się hol-salonik. Do domu wchodzimy przez wygodny przedsionek z szatnią, do holu z reprezentacyjnymi schodami, a dalej do przestrzeni dziennej. Dodatkowe pomieszczenia na parterze to oczywiście duży garaż z pomieszczeniem technicznym, oraz oddzielony akustycznie gabinet. Na piętrze zaprojektowano 4 pokoje sypialne, w tym apartament master z oddzielną łazienką i garderobami. Willa Siedziba 3 została zaprojektowana jako dom energooszczędny, z dobrej jakości materiałów, z dobrą izolacją termiczną i z nowoczesnymi instalacjami. Budynek mimo skomplikowanej formy wykonano w tradycyjnej technologii, z rozwiązaniami spotykanymi na każdej budowie. Budowa budynku nie powinna być problematyczna dla fachowego wykonawcy. Willa Siedziba 3 to propozycja dla Inwestorów marzących o budowie prawdziwego pełnokrwistego domu o odpowiedniej skali, dającego przestrzeń do komfortowego życia, marzących o realizacji projektu nietuzinkowego o ponadczasowej stylistyce. Zapraszamy !
