- Tylko online
Masz pytania? Chciałbyś negocjować cenę
Zadzwoń! 577 575 011
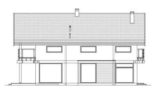
Zmiana kąta nachylenia dachu na 25st., podwyższenie ścianki kolankowej ale kalenica jak w projekcie bazowym, okna w ściance kolankowej, powiększenie garażu na tylnej części budynku. Powiększenie podpiwniczenia. Dodanie żelbetowej studzienki z oknem doświetlającym piwnicę
