- Tylko online
Masz pytania? Chciałbyś negocjować cenę
Zadzwoń! 577 575 011
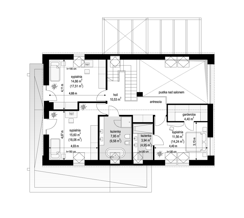
Projekt domu Makarena to projekt nowoczesnej stodoły z naszej serii taneczno-imprezowych domów (Mambo, Bolero, Lambada, Party, Biba, Tango, Salsa, Rumba, Fokstrot). To wyjątkowy projekt w naszej ofercie - tylko dla odważnych Inwestorów, patrzących z wizją i wyobraźnią na swoją przeszłą inwestycję. Makarena to połączenie bezkompromisowej architektury, zamkniętej w nowoczesnej formie domu- stodoły, oraz funkcjonalnego parterowego domku jednorodzinnego z poddaszem użytkowym. Rzut domu na planie prostokąta, z wbudowanym parterowym garażem, wieńczy dwuspadowy symetryczny dach z wysoką ścianą kolankową poddasza. Całość bryły budynku wykończona jest blachą na rąbek stojący - zarówno połacie dachu jak i ściany elewacji bocznych. Jednolitą materiałowo i kolorystycznie bryłę przecinają duże przeszklenia okienne, fragmenty elewacji drewnianej, parterowy garaż od frontu i pergola od strony elewacji ogrodowej. Antracytowy kolor blachy kontrastuje z elementami drewnianymi, z fragmentami elewacji tynkowanej i z szybami otwierającymi wnętrze lub odbijającymi otaczającą dom zieleń. Sylwetka i bryła budynku jest bardzo nowoczesna, bezkompromisowa w swym wyrazie, nietuzinkowa. Dom z pewnością ma oryginalny wyraz i będzie przyciągał spojrzenia. Od strony elewacji frontowej pierwsze skrzypce gra reprezentacyjne wejście do domu - z drzwiami wejściowymi z naświetlami bocznymi, oraz duże okno kuchenne otwierające wnętrze kuchni z wyspą. Strona ogrodowa to piękne przeszklenia salonu, w tym wysokie dwukondygnacyjne okno antresoli, oraz drewniane elementy - taras, okładzina szczytu i pergola, przełamujące monotonię ciemnej blachy. Wnętrze domu zaskakuje poczuciem dużej przestrzeni części dziennej - niełatwym do uzyskania w 150-metrowym domu. Wrażenie przestronności potęgują duże przeszklenia, oraz pustka nad salonem i schodami, łącząca pokój dzienny z antresolą na poddaszu. Wnętrze jest bardzo nowoczesne. Dominują tu trzy przenikające się kolory i materiały : biel ścian, drewno i kontrastujące wstawki w szarości i czerni. Na parterze prócz części dziennej znajdziemy dodatkowy pokój z łazienką, oraz garaż z pomieszczeniem technicznym. Na poddaszu przewidziano trzy pokoje sypialne z dwiema łazienkami, w tym apartament master z własną łazienką i garderobą. Wnętrze można dowolnie kształtować, ale bez problemu zmieści się tutaj 4- 6-osobowa rodzina. Budynek zaprojektowano jako energooszczędny, z dobrymi izolacjami i nowoczesnymi instalacjami. Dom, mimo ekstrawaganckiego wyglądu, ma prostą konstrukcję i zwartą bryłę, dzięki czemu będzie łatwy w budowie i niedrogi w późniejszej eksploatacji. Makarena to propozycja dla Inwestorów pragnących zbudować oryginalny, wyjątkowy dom o ultranowoczesnym bezkompromisowym wyglądzie. Dom, który jest nietuzinkową i wyjątkową scenografią codziennego życia, który sam w sobie podnosi jego jakość, ciesząc zmysły właścicieli i przyciągając zaciekawione spojrzenia sąsiadów i przechodniów. Makarena do dom dla Inwestorów chcących wyrazić siebie i zaznaczyć swój wyraźny i oryginalny ślad. Zapraszamy do zapoznania się z całą serią "roztańczonych domów": https://www.mgprojekt.com.pl/makarena, https://www.mgprojekt.com.pl/bolero, https://www.mgprojekt.com.pl/lambada, https://www.mgprojekt.com.pl/party, https://www.mgprojekt.com.pl/party-2, https://www.mgprojekt.com.pl/biba, https://www.mgprojekt.com.pl/tango, https://www.mgprojekt.com.pl/salsa, https://www.mgprojekt.com.pl/rumba, https://www.mgprojekt.com.pl/fokstrot.
