- Tylko online
Masz pytania? Chciałbyś negocjować cenę
Zadzwoń! 577 575 011
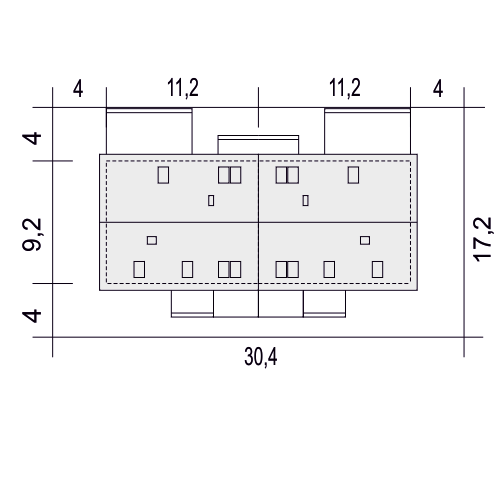
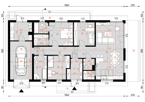
D332 wersja drewniana dom parterowy z garażem i gabinetem w typie nowoczesnej stodoły.
