Informujemy, iż nasz sklep internetowy wykorzystuje technologię plików cookies a jednocześnie nie zbiera w sposób automatyczny żadnych informacji, z wyjątkiem informacji zawartych w tych plikach (tzw. „ciasteczkach”).

D337A - WT2021

  • Tylko online

Dane techniczne

powierzchnia
94.31 m²
wysokość
7.71 m
kąt dachu
40 °
szerokość działki
17.38 m
Liczba pokoi
3
Powierzchnia zabudowy
67.09
kondygnacje
z poddaszem użytkowym
garaż
bez garażu
dach
dach dwuspadowy
konstrukcja
szkieletowe
zabudowa
domy wolnostojące
piwnica
bez piwnicy
kubatura
420 m³
dostępne odbicie lustrzane
Nie
Pow. użytkowa
94.31 m²
długość działki
15.15 m
Liczba łazienek
2

Opis projektu

Rzuty

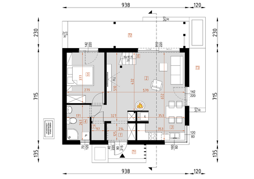
Parter
1 hol
6.19
2 salon
22.45
3 kuchnia
7.54
4 łazienka
4.37
5 pokój
10.52
6 schody
2.22
7 pom. techniczne
1.21
8 taras 1
2.78
9 taras 2
17.96
10 taras 3
5.32
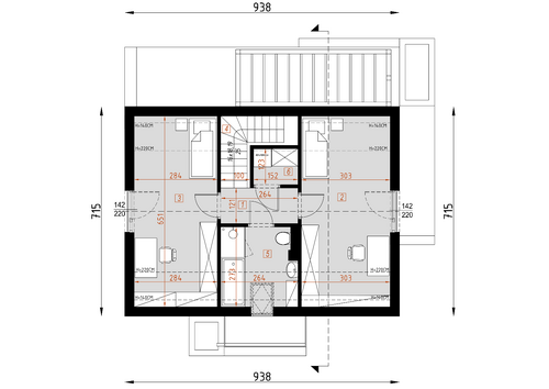
Poddasze
1 korytarz
3.2
1 pokój
15.42
1 pokój
14.46
1 schody
1.12
1 łazienka
5
1 schowek
1.82

Elewacje

Sytuacja

O autorze projektu D337A - WT2021

3 449 zł

Tylko u nas możesz negocjować cenę!
Skorzystaj z tej możliwości.

Lustrzane odbicie: niedostępne.

Masz dodatkowe pytania?
Zadzwoń lub zamów rozmowę.

Zamów rozmowę

Pomożemy Ci dopasować do twoich potrzeb mymarzony projekt, wpisz swój numer telefonu nasz konsultant oddzwoni.

Negocjuj cenę projektu D337A - WT2021

Zapytaj pytanie o projekt D337A - WT2021

Oceny i komentarze

Napisz swoją opinię