- Tylko online
Masz pytania? Chciałbyś negocjować cenę
Zadzwoń! 577 575 011
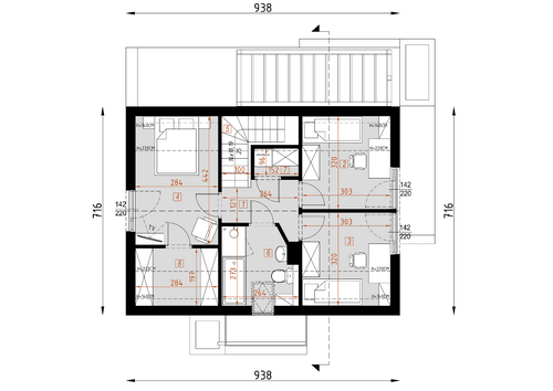
Dom jednorodzinny z poddaszem w technologii drewnianej
