Informujemy, iż nasz sklep internetowy wykorzystuje technologię plików cookies a jednocześnie nie zbiera w sposób automatyczny żadnych informacji, z wyjątkiem informacji zawartych w tych plikach (tzw. „ciasteczkach”).

D339B - WT2021

  • Tylko online

Dane techniczne

powierzchnia
94.47 m²
wysokość
7.71 m
kąt dachu
40 °
szerokość działki
17.38 m
Liczba pokoi
4
Powierzchnia zabudowy
67.09
kondygnacje
z poddaszem użytkowym
garaż
bez garażu
dach
dach dwuspadowy
konstrukcja
murowane
zabudowa
domy wolnostojące
piwnica
bez piwnicy
kubatura
420 m³
dostępne odbicie lustrzane
Nie
Pow. użytkowa
94.47 m²
długość działki
15.16 m
Liczba łazienek
2

Opis projektu

Dom jednorodzinny z poddaszem w technologii drewnianej

Rzuty

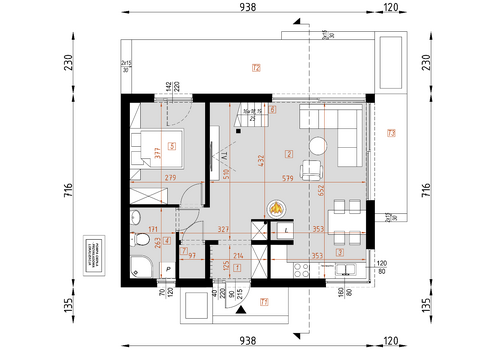
Parter
1 hol
6.19
2 salon
22.45
3 kuchnia
7.54
4 łazienka
4.37
5 pokój 1
10.52
6 schody
2.22
7 pom. techniczne
1.21
8 taras 1
2.94
9 taras 2
17.96
10 taras 3
5.32
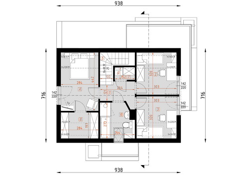
Poddasze
1 korytarz
3.98
1 pokój 2
7.52
1 pokój 3
7.52
1 pokój 4
10.53
1 schody
1.12
1 łazienka
5.54
1 pom. gospodarcze
1.4
1 garderoba
3.57

Elewacje

Sytuacja

O autorze projektu D339B - WT2021

3 899 zł

Tylko u nas możesz negocjować cenę!
Skorzystaj z tej możliwości.

Lustrzane odbicie: niedostępne.

Masz dodatkowe pytania?
Zadzwoń lub zamów rozmowę.

Zamów rozmowę

Pomożemy Ci dopasować do twoich potrzeb mymarzony projekt, wpisz swój numer telefonu nasz konsultant oddzwoni.

Negocjuj cenę projektu D339B - WT2021

Zapytaj pytanie o projekt D339B - WT2021

Oceny i komentarze

Napisz swoją opinię