- Tylko online
Masz pytania? Chciałbyś negocjować cenę
Zadzwoń! 577 575 011
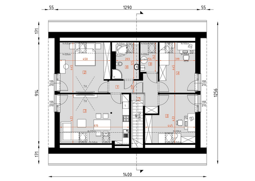
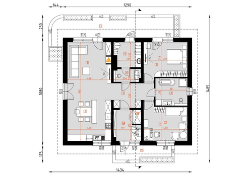
Dom jednorodzinny z dwoma wydzielonymi mieszkaniami, jedno z poziomu parteru i drugie na poddaszu, w technologii murowanej
