Informujemy, iż nasz sklep internetowy wykorzystuje technologię plików cookies a jednocześnie nie zbiera w sposób automatyczny żadnych informacji, z wyjątkiem informacji zawartych w tych plikach (tzw. „ciasteczkach”).

D350 - WT2021

  • Tylko online

Dane techniczne

powierzchnia
103.5 m²
wysokość
8.67 m
kąt dachu
25 °
szerokość działki
14.1 m
Liczba pokoi
3
Powierzchnia zabudowy
69.66
kondygnacje
z poddaszem do adaptacji
garaż
z garażem 1 st.
dach
dach dwuspadowy
konstrukcja
murowane
zabudowa
domy bliźniacze
piwnica
bez piwnicy
kubatura
537.68 m³
dostępne odbicie lustrzane
Nie
Pow. użytkowa
103.5 m²
długość działki
16.6 m
Liczba łazienek
2

Opis projektu

Dom jednorodzinny z piętrem w technologii murowanej. Możliwość zbliźniaczenia lub postawienia w zabudowie szeregowej. Podany koszt, to koszt jednego segmentu!

Rzuty

Parter
1 hal
3.34
2 łazienka
4.61
3 pom. techniczne
0.5
4 schody
4.45
5 salon
17.7
6 kuchnia
6.67
7 garaż
17.05
8 taras 1
4.51
9 taras 2
14.65
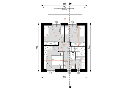
Piętro
1 pokój
11.66
1 pokój
11.95
1 korytarz
3.24
1 pokój
12.85
1 łazienka
6.28
1 pralnia
3.2
7 balkon
9.08

Elewacje

Sytuacja

O autorze projektu D350 - WT2021

4 099 zł

Tylko u nas możesz negocjować cenę!
Skorzystaj z tej możliwości.

Lustrzane odbicie: niedostępne.

Masz dodatkowe pytania?
Zadzwoń lub zamów rozmowę.

Zamów rozmowę

Pomożemy Ci dopasować do twoich potrzeb mymarzony projekt, wpisz swój numer telefonu nasz konsultant oddzwoni.

Negocjuj cenę projektu D350 - WT2021

Zapytaj pytanie o projekt D350 - WT2021

Oceny i komentarze

Napisz swoją opinię