- Tylko online
Masz pytania? Chciałbyś negocjować cenę
Zadzwoń! 577 575 011
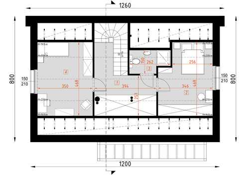
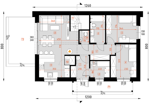
Nowoczesny dom parterowy dla rodziny. Parter składa się z wiatrołapu, pokoju dziennego ,dwóch pokoi sypialnych, kuchni, łazienki, toalety, pomieszczenia technicznego. Na poddaszu znajdują się dwa pokoje i łazienka. Budynek może zostać usytuowany w ostrej granicy lub zostać zbliźniaczony Powierzchnia dachu: 107,39m2 Powierzchnia stropodachu: 13,54m2
