- Tylko online
Masz pytania? Chciałbyś negocjować cenę
Zadzwoń! 577 575 011
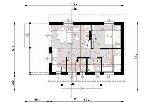
Materiały: Ściany zewnętrzne: drewniane z ociepleniem. strop: dźwigar dachowy konstrukcja dachu: drewniany: dźwigar dachowy pokrycie dachu: blachodachówka elewacja: tynk cienkowarstwowy, na fragmentach ścian deski. ogrzewanie - kocioł gazowy EP70 kWh/m2.rok Projekt zgodny z Wt2021 wentylacja grawitacyjna
