- Tylko online
Masz pytania? Chciałbyś negocjować cenę
Zadzwoń! 577 575 011
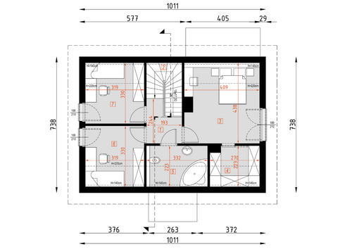
Projekt D170D to nowoczesny dom parterowy z poddaszem użytkowym w szkielecie drewnianym. Prosta forma, ciekawe rozwiązanie elewacji oraz - co najważniejsze - niezwykle funkcjonalne wnętrze są atutami tego domu. Duży taras z zadaszeniem zaprasza do odpoczynku w ciepłe dni. Dzięki dużym oknom tarasowym widny pokój dzienny stanie się ulubionym miejscem spędzania wolnego czasu.
