- Tylko online
Masz pytania? Chciałbyś negocjować cenę
Zadzwoń! 577 575 011
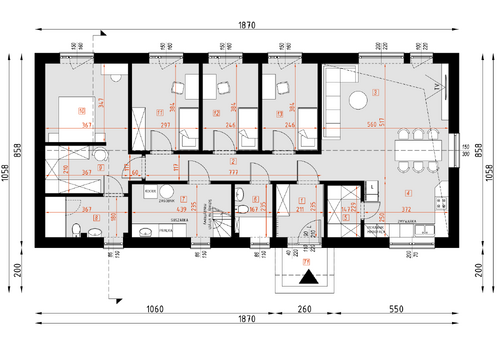
D406 dom parterowy w technologii murowanej w typie nowoczesnej stodoły, z otwarciem nad pokojem dziennym.
