Informujemy, iż nasz sklep internetowy wykorzystuje technologię plików cookies a jednocześnie nie zbiera w sposób automatyczny żadnych informacji, z wyjątkiem informacji zawartych w tych plikach (tzw. „ciasteczkach”).

D411 - WT2021

  • Tylko online

Dane techniczne

powierzchnia
87.62 m²
wysokość
8.38 m
kąt dachu
45 °
szerokość działki
12.25 m
Liczba pokoi
4
Powierzchnia zabudowy
109.33
kondygnacje
z poddaszem użytkowym
garaż
bez garażu
dach
dach dwuspadowy
konstrukcja
murowane
zabudowa
domy wolnostojące
piwnica
bez piwnicy
kubatura
398 m³
dostępne odbicie lustrzane
Nie
Pow. użytkowa
87.62 m²
długość działki
17.38 m
Liczba łazienek
2

Opis projektu

Dom jednorodzinny z piętrem w technologii murowanej. Możliwość zbliźniaczenia lub postawienia w zabudowie szeregowej. Podany koszt, to koszt jednego segmentu!

Rzuty

Parter
1 przedsionek
6.54
2 salon z aneksem kuchennym
30.89
3 łazienka
6.95
4 schody
4.59
5 taras
1.75
6 taras
1.06
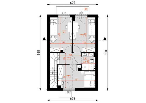
Poddasze
1 korytarz
3.57
2 pokój
10.56
3 pokój
10.54
4 łazienka
3.02
5 sypialnia
10.96
6 balkon
4

Elewacje

Sytuacja

O autorze projektu D411 - WT2021

4 090 zł

Tylko u nas możesz negocjować cenę!
Skorzystaj z tej możliwości.

Lustrzane odbicie: niedostępne.

Masz dodatkowe pytania?
Zadzwoń lub zamów rozmowę.

Zamów rozmowę

Pomożemy Ci dopasować do twoich potrzeb mymarzony projekt, wpisz swój numer telefonu nasz konsultant oddzwoni.

Negocjuj cenę projektu D411 - WT2021

Zapytaj pytanie o projekt D411 - WT2021

Oceny i komentarze

Napisz swoją opinię