- Tylko online
Masz pytania? Chciałbyś negocjować cenę
Zadzwoń! 577 575 011
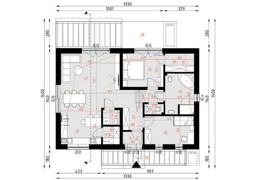
D420 to nowoczesny parterowy dom w technologii murowanej, z otwarciem nad salonem i kuchnią, nad pozostałą częścią poddasze nieużytkowe.
