- Tylko online
Masz pytania? Chciałbyś negocjować cenę
Zadzwoń! 577 575 011
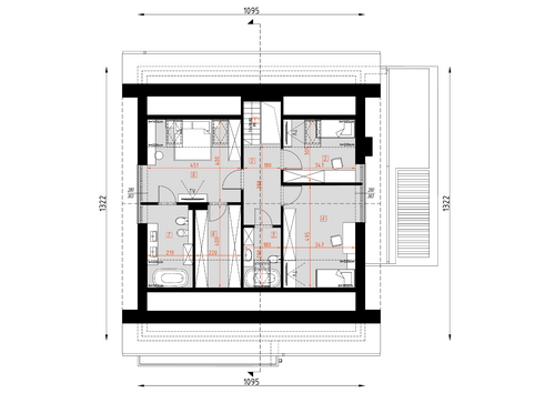
D414 to nowoczesny dom z podaszem użytkowym, w technologii murowanej, z przestronnym salonem. Na parterze istnieje możliwość wydzielenia dodatkowego mieszkania.
