- Tylko online
Masz pytania? Chciałbyś negocjować cenę
Zadzwoń! 577 575 011
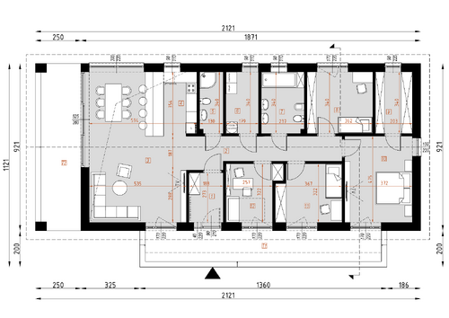
D405 dom parterowy w typie nowoczesnej stodoły, z otwarciem nad salonem.
