- Tylko online
Masz pytania? Chciałbyś negocjować cenę
Zadzwoń! 577 575 011
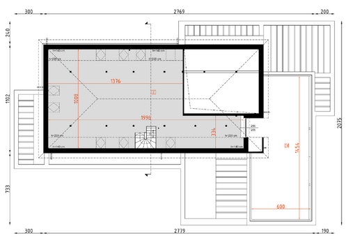
Dom mieszkalny jednorodzinny z poddaszem do adaptacji.
