- Tylko online
Masz pytania? Chciałbyś negocjować cenę
Zadzwoń! 577 575 011
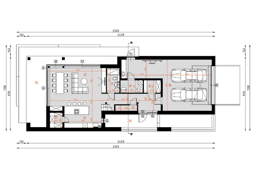
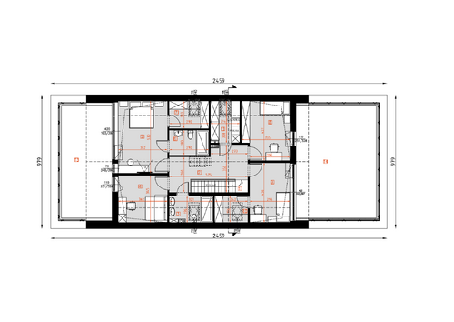
Dom mieszkalny jednorodzinny z poddaszem użytkowym.
