Informujemy, iż nasz sklep internetowy wykorzystuje technologię plików cookies a jednocześnie nie zbiera w sposób automatyczny żadnych informacji, z wyjątkiem informacji zawartych w tych plikach (tzw. „ciasteczkach”).

DM2 - WT2021 wersja drewniana

  • Tylko online

Dane techniczne

powierzchnia
55.98 m²
wysokość
3.85 m
szerokość działki
18 m
Liczba pokoi
3
Powierzchnia zabudowy
76.8
kondygnacje
parterowe
garaż
bez garażu
dach
dach jednospadowy
konstrukcja
szkieletowe
zabudowa
domy wolnostojące
piwnica
bez piwnicy
kubatura
263.16 m³
dostępne odbicie lustrzane
Nie
Pow. użytkowa
55.98 m²
długość działki
14.4 m
Liczba łazienek
1

Opis projektu

Rzuty

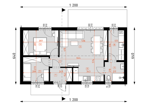
Parter
1 wiatrołap
3.78
2 przedpokój
1.19
3 pokój
7.9
4 sypialnia
11.15
5 salon z jadalnią
21.7
6 łazienka
4.73
7 kuchnia
5.53
8 pom. gospodarcze
5.95

Elewacje

Sytuacja

O autorze projektu DM2 - WT2021 wersja drewniana

3 690 zł

Tylko u nas możesz negocjować cenę!
Skorzystaj z tej możliwości.

Lustrzane odbicie: niedostępne.

Masz dodatkowe pytania?
Zadzwoń lub zamów rozmowę.

Zamów rozmowę

Pomożemy Ci dopasować do twoich potrzeb mymarzony projekt, wpisz swój numer telefonu nasz konsultant oddzwoni.

Negocjuj cenę projektu DM2 - WT2021 wersja drewniana

Zapytaj pytanie o projekt DM2 - WT2021 wersja drewniana

Oceny i komentarze

Napisz swoją opinię