- Tylko online
Masz pytania? Chciałbyś negocjować cenę
Zadzwoń! 577 575 011
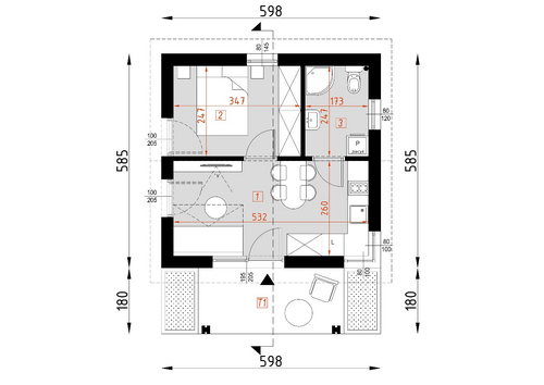
Projekt budynku rekreacji indywidualnej w technologii drewnianej.
