- Tylko online
Masz pytania? Chciałbyś negocjować cenę
Zadzwoń! 577 575 011
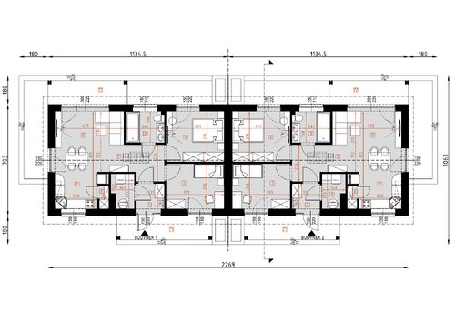
D324 WT2021 niewielki dom parterowy całoroczny, w zabudowie bliźniaczej.
