- Tylko online
Masz pytania? Chciałbyś negocjować cenę
Zadzwoń! 577 575 011
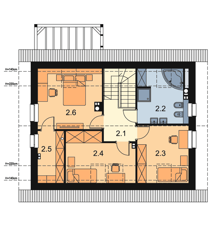
Atrakcyjny projekt domu, którego z jednej strony niewątpliwym atutem jest prostota konstrukcji, z drugiej natomiast funkcjonalność przyjętych rozwiązań. Klasyczną bryłę budynku przykryto dwuspadowym dachem i wzbogacono okładzinami z drewna, kontrastującymi z dwukolorową elewacją i ciemną stolarką, co sprawia, że całość prezentuje się elegancko i stylowo. Parter to typowa strefa dzienna z przestronnym salonem i otwartą kuchnią. Znalazła się tutaj także niewielka łazienka i aż dwa dodatkowe pokoje, Jeden może być przeznaczony na gabinet, drugi pełnić funkcję pokoju gościnnego lub pokoju dla seniora. Część gospodarcza domu zlokalizowana została w piwnicy, gdzie mieści się kotłownia na paliwo stałe, pralnia, oraz dwa pomieszczenia gospodarcze. Jedno z nich sąsiaduje z kotłownią i może zostać przeznaczone na przykład na skład opału, drugie można zamienić w pokój hobby. Do piwnicy oraz na zewnątrz prowadzą schody zewnętrzne, zlokalizowane przy kotłowni. Poddasze to typowa strefa nocna z trzema ustawnymi pokojami oraz sporą łazienką gdzie zmieści się wanna i prysznic. Dodatkowo główna sypialnia posiada własną, obszerną garderobę.
Przy projektowaniu domu Amor z piwnicą nie zapomnieliśmy o ekologii. Przyjęte rozwiązania i zastosowane materiały sprawiają, że cały budynek ma minimalny wpływ na środowisko naturalne i spełnia wszystkie rygorystyczne wymogi współczesnego projektowania.
Uwaga! Dokumentacja Projektowa nie zawiera elementów małej architektury takich jak: donice, podesty, altany, grille ogrodowe, murki, pergole, a także innych elementów wizualizacji, takich jak: garaże i wiaty wolnostojące, drogi, podjazdy, ogrodzenia, baseny itp.
