Informujemy, iż nasz sklep internetowy wykorzystuje technologię plików cookies a jednocześnie nie zbiera w sposób automatyczny żadnych informacji, z wyjątkiem informacji zawartych w tych plikach (tzw. „ciasteczkach”).

HOMEKONCEPT 52 B

Lustrzane odbicie
  • Tylko online

Dane techniczne

powierzchnia
93.76 m²
wysokość
6.81 m
szerokość działki
22.69 m
Liczba pokoi
3
Powierzchnia zabudowy
167.45
kondygnacje
piętrowe
garaż
z garażem 1 st.
dach
dach płaski
kubatura
1015 m³
dostępne odbicie lustrzane
Tak
Pow. użytkowa
93.76 m²
długość działki
21 m
Liczba łazienek
2
Powierzchnia dachu
116 m²
Euco+w
34.85 kWh/m2 rok
Ep
63.73 kWh/m2 rok

Opis projektu

Rzuty

Rzut parteru
1 komunikacja
5.2
2 taras
17.32
3 salon/jadalnia/kuchnia
31.7
4 wiatrołap
4.53
5 toaleta
1.51
6 garaż
18.8
rzut piętra
1 sypialnia
14.62
2 kotłownia/pralnia
2.93
3 taras
7.86
4 łazienka
6.18
5 komunikacja
6.3
6 sypialnia
10.5
7 sypialnia
10.29
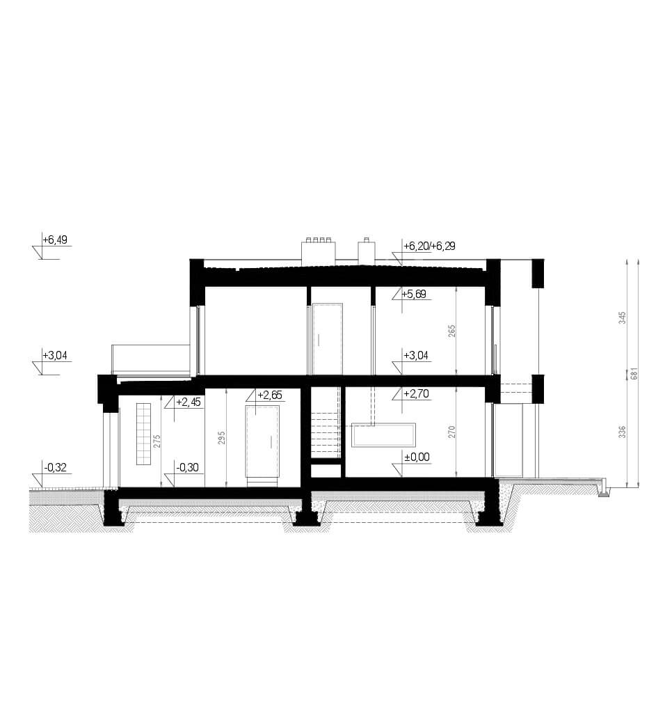
przekrój
1 wysokość budynku
6.81

O autorze projektu HOMEKONCEPT 52 B

8 490 zł

Tylko u nas możesz negocjować cenę!
Skorzystaj z tej możliwości.

Lustrzane odbicie: dostępne.

Masz dodatkowe pytania?
Zadzwoń lub zamów rozmowę.

Zamów rozmowę

Pomożemy Ci dopasować do twoich potrzeb mymarzony projekt, wpisz swój numer telefonu nasz konsultant oddzwoni.

Negocjuj cenę projektu HOMEKONCEPT 52 B

Wersja projektu:

Zapytaj pytanie o projekt HOMEKONCEPT 52 B

Wersja projektu:

Oceny i komentarze

Napisz swoją opinię