Informujemy, iż nasz sklep internetowy wykorzystuje technologię plików cookies a jednocześnie nie zbiera w sposób automatyczny żadnych informacji, z wyjątkiem informacji zawartych w tych plikach (tzw. „ciasteczkach”).

HOMEKONCEPT 64

Lustrzane odbicie
  • Tylko online

Dane techniczne

powierzchnia
144.61 m²
wysokość
9.06 m
kąt dachu
25 °
szerokość działki
20.95 m
Liczba pokoi
5
Powierzchnia zabudowy
160.56
kondygnacje
piętrowe
garaż
z garażem 2 st.
dach
dach wielospadowy
kubatura
1044 m³
dostępne odbicie lustrzane
Tak
Pow. użytkowa
144.61 m²
długość działki
23.65 m
Liczba łazienek
3
Powierzchnia dachu
255 m²
Euco+w
15.18 kWh/m2 rok
Ep
69.76 kWh/m2 rok

Opis projektu

Rzuty

Rzut parteru
1 taras
97.21
2 garderoba
6.02
3 spiżarnia
2.3
4 kuchnia
8.37
5 łazienka
2.4
6 garaż
35.4
7 wiatrołap
4.52
8 kotłownia/pralnia
4.75
9 salon/jadalnia
34.98
10 komunikacja
11.13
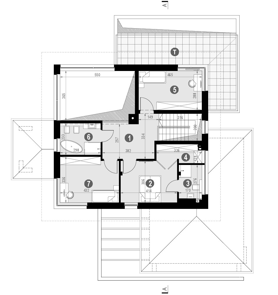
Rzut piętra
1 łazienka
6.94
2 sypialnia
12.64
3 sypialnia
13.39
4 sypialnia
14.11
5 łazienka
4.24
6 taras
25.39
7 komunikacja
14.77
8 garderoba
4.05
przekrój
1 wysokość budynku
9.06
2 wysokość do okapu dachu
5.87

O autorze projektu HOMEKONCEPT 64

6 790 zł

Tylko u nas możesz negocjować cenę!
Skorzystaj z tej możliwości.

Lustrzane odbicie: dostępne.

Masz dodatkowe pytania?
Zadzwoń lub zamów rozmowę.

Zamów rozmowę

Pomożemy Ci dopasować do twoich potrzeb mymarzony projekt, wpisz swój numer telefonu nasz konsultant oddzwoni.

Negocjuj cenę projektu HOMEKONCEPT 64

Wersja projektu:

Zapytaj pytanie o projekt HOMEKONCEPT 64

Wersja projektu:

Oceny i komentarze

Napisz swoją opinię