Informujemy, iż nasz sklep internetowy wykorzystuje technologię plików cookies a jednocześnie nie zbiera w sposób automatyczny żadnych informacji, z wyjątkiem informacji zawartych w tych plikach (tzw. „ciasteczkach”).

HOMEKONCEPT 65

Lustrzane odbicie
  • Tylko online

Dane techniczne

powierzchnia
72.67 m²
wysokość
6.89 m
kąt dachu
35 °
szerokość działki
17.2 m
Liczba pokoi
2
Powierzchnia zabudowy
56.69
kondygnacje
parterowe
garaż
bez garażu
dach
dach dwuspadowy
kubatura
326 m³
dostępne odbicie lustrzane
Tak
Pow. użytkowa
72.67 m²
długość działki
16.75 m
Liczba łazienek
1
Powierzchnia dachu
90 m²
Euco+w
31.96 kWh/m2 rok
Ep
68.42 kWh/m2 rok

Opis projektu

Rzuty

Rzut parteru
1 łazienka
2.8
2 pom. gospodarcze
4.07
3 komunikacja
6.12
4 salon
23.36
5 kuchnia
4.58
6 taras
98.23
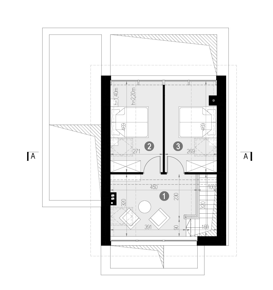
Rzut poddasza
1 komunikacja
13.5
2 sypialnia
9.04
3 sypialnia
9.2
przekrój
1 wysokość budynku
6.89
2 wysokość do okapu dachu
3.79

O autorze projektu HOMEKONCEPT 65

4 590 zł

Tylko u nas możesz negocjować cenę!
Skorzystaj z tej możliwości.

Lustrzane odbicie: dostępne.

Masz dodatkowe pytania?
Zadzwoń lub zamów rozmowę.

Zamów rozmowę

Pomożemy Ci dopasować do twoich potrzeb mymarzony projekt, wpisz swój numer telefonu nasz konsultant oddzwoni.

Negocjuj cenę projektu HOMEKONCEPT 65

Wersja projektu:

Zapytaj pytanie o projekt HOMEKONCEPT 65

Wersja projektu:

Oceny i komentarze

Napisz swoją opinię