Informujemy, iż nasz sklep internetowy wykorzystuje technologię plików cookies a jednocześnie nie zbiera w sposób automatyczny żadnych informacji, z wyjątkiem informacji zawartych w tych plikach (tzw. „ciasteczkach”).

HOMEKONCEPT 28 wariant 01

Lustrzane odbicie
  • Tylko online

Dane techniczne

powierzchnia
297.04 m²
wysokość
8.34 m
kąt dachu
35 °
szerokość działki
24.02 m
Liczba pokoi
11
Powierzchnia zabudowy
253.47
kondygnacje
parterowe
garaż
z garażem 2 st.
dach
dach wielospadowy
kubatura
1442 m³
dostępne odbicie lustrzane
Tak
Pow. użytkowa
297.04 m²
długość działki
29.3 m
Liczba łazienek
4
Powierzchnia dachu
341 m²
Euco+w
16.09 kWh/m2 rok
Ep
68.27 kWh/m2 rok

Opis projektu

Rzuty

Rzut parteru
1 kotłownia/pralnia
6.54
2 łazienka
10.29
3 sypialnia
10.69
4 garaż
35.7
5 kuchnia
15.06
6 garderoba
6.59
7 garderoba
3.68
8 taras
35.48
9 spiżarnia
2.03
10 sypialnia
15.89
11 pom. gospodarcze
7.41
12 wiatrołap
3.87
13 komunikacja
17.12
14 sypialnia
16.09
15 salon z jadalnią
47.28
16 toaleta
2.13
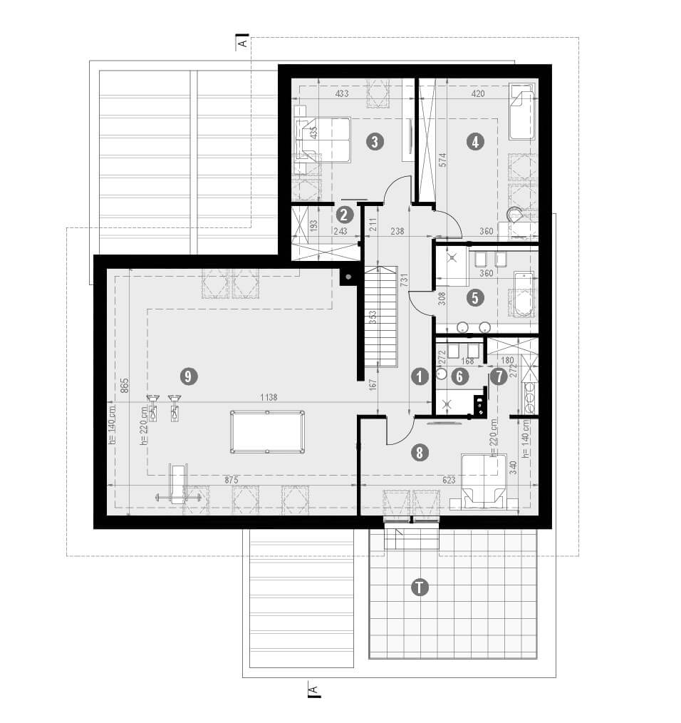
Rzut poddasza
1 sypialnia
14.01
2 taras
26.33
3 sypialnia
12.47
4 komunikacja
15.65
5 garderoba
3.04
6 sypialnia
15.83
7 pom. rekreacyjne
56.01
8 garderoba
2.57
9 łazienka
8.45
10 łazienka
4.34
przekrój
1 wysokość budynku
8.34
2 wysokość do okapu dachu
4.02

O autorze projektu HOMEKONCEPT 28 wariant 01

8 990 zł

Tylko u nas możesz negocjować cenę!
Skorzystaj z tej możliwości.

Lustrzane odbicie: dostępne.

Masz dodatkowe pytania?
Zadzwoń lub zamów rozmowę.

Zamów rozmowę

Pomożemy Ci dopasować do twoich potrzeb mymarzony projekt, wpisz swój numer telefonu nasz konsultant oddzwoni.

Negocjuj cenę projektu HOMEKONCEPT 28 wariant 01

Wersja projektu:

Zapytaj pytanie o projekt HOMEKONCEPT 28 wariant 01

Wersja projektu:

Oceny i komentarze

Napisz swoją opinię