Informujemy, iż nasz sklep internetowy wykorzystuje technologię plików cookies a jednocześnie nie zbiera w sposób automatyczny żadnych informacji, z wyjątkiem informacji zawartych w tych plikach (tzw. „ciasteczkach”).

HOMEKONCEPT 66 G2

Lustrzane odbicie
  • Tylko online

Dane techniczne

powierzchnia
126.39 m²
kąt dachu
35 °
szerokość działki
27.94 m
Liczba pokoi
5
Powierzchnia zabudowy
148.07
kondygnacje
parterowe
garaż
z garażem 2 st.
dach
dach dwuspadowy
kubatura
742 m³
dostępne odbicie lustrzane
Tak
Pow. użytkowa
126.39 m²
długość działki
22.28 m
Liczba łazienek
3
Powierzchnia dachu
143 m²
Euco+w
26.81 kWh/m2 rok
Ep
69.31 kWh/m2 rok

Opis projektu

Rzuty

Rzut parteru
1 pom. gospodarcze/pralnia
6.18
2 komunikacja
8.45
3 garaż
35.94
4 toaleta
1.36
5 łazienka
5.2
6 sauna
2.3
7 taras
129.02
8 łącznik
5.04
9 taras
9.25
10 wiatrołap
4.87
11 salon/jadalnia/kuchnia
28.2
12 sypialnia
11.46
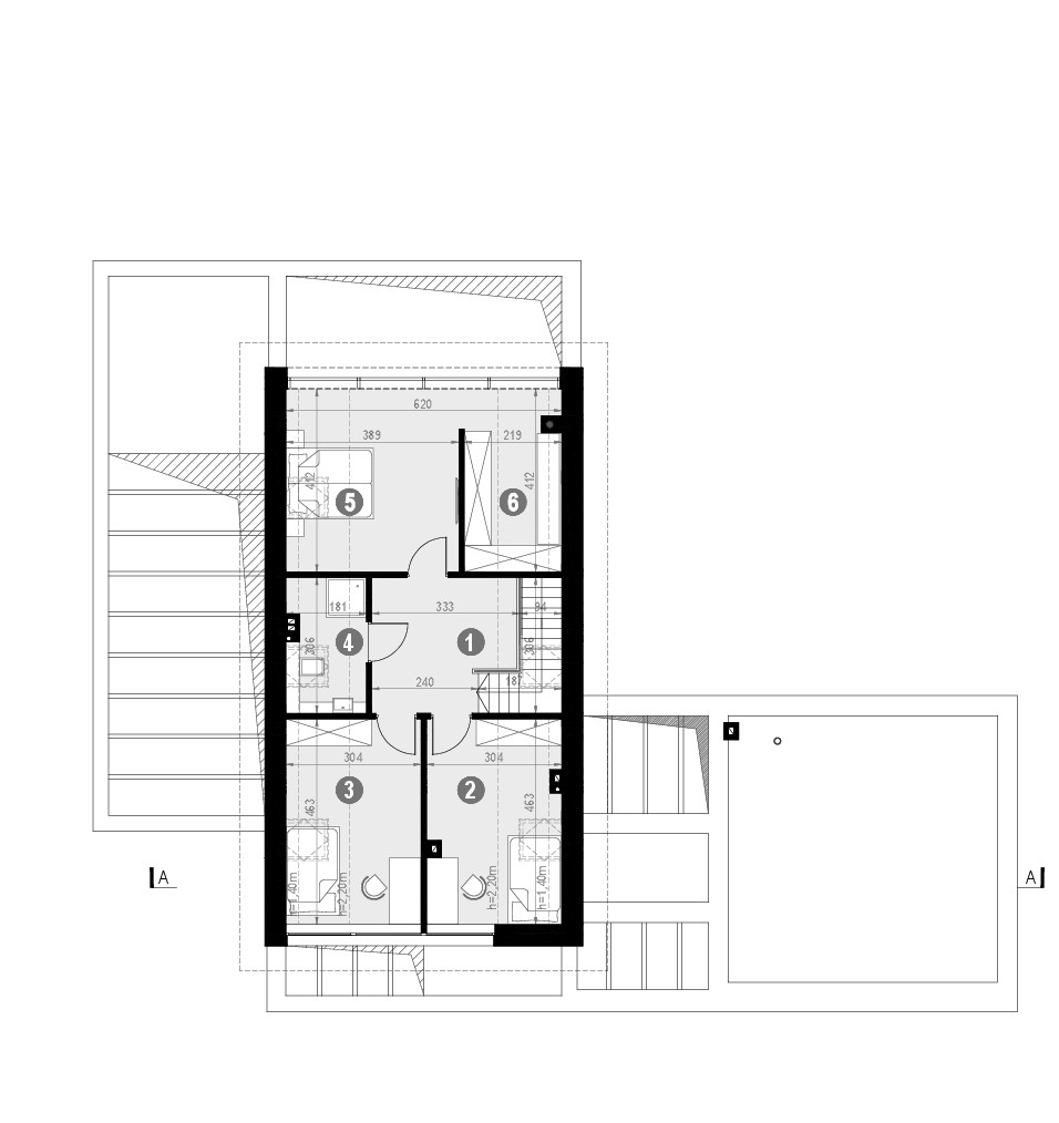
Rzut poddasza
1 sypialnia
12.5
2 sypialnia
9.98
3 komunikacja
12.37
4 łazienka
2.91
5 sypialnia
10.11
6 garderoba
5.46
przekrój
1 wysokość do okapu dachu
3.67
2 wysokość budynku
7.11

O autorze projektu HOMEKONCEPT 66 G2

6 190 zł

Tylko u nas możesz negocjować cenę!
Skorzystaj z tej możliwości.

Lustrzane odbicie: dostępne.

Masz dodatkowe pytania?
Zadzwoń lub zamów rozmowę.

Zamów rozmowę

Pomożemy Ci dopasować do twoich potrzeb mymarzony projekt, wpisz swój numer telefonu nasz konsultant oddzwoni.

Negocjuj cenę projektu HOMEKONCEPT 66 G2

Wersja projektu:

Zapytaj pytanie o projekt HOMEKONCEPT 66 G2

Wersja projektu:

Oceny i komentarze

Napisz swoją opinię