Informujemy, iż nasz sklep internetowy wykorzystuje technologię plików cookies a jednocześnie nie zbiera w sposób automatyczny żadnych informacji, z wyjątkiem informacji zawartych w tych plikach (tzw. „ciasteczkach”).

HOMEKONCEPT 66 A G1

Lustrzane odbicie
  • Tylko online

Dane techniczne

powierzchnia
108.93 m²
wysokość
7.1 m
kąt dachu
35 °
szerokość działki
22.28 m
Liczba pokoi
3
Powierzchnia zabudowy
130.73
kondygnacje
parterowe
garaż
z garażem 1 st.
dach
dach dwuspadowy
kubatura
679 m³
dostępne odbicie lustrzane
Tak
Pow. użytkowa
108.93 m²
długość działki
24.44 m
Liczba łazienek
2
Powierzchnia dachu
143 m²
Euco+w
30.39 kWh/m2 rok
Ep
67.44 kWh/m2 rok

Opis projektu

Rzuty

Rzut parteru
1 pom. gospodarcze/pralnia
6.14
2 wiatrołap
4.87
3 garaż
20.96
4 łazienka
5.6
5 sypialnia
11.46
6 sauna
2.3
7 łącznik
5.04
8 taras
9.41
9 taras
129.05
10 komunikacja
8.45
11 toaleta
1.36
12 salon/jadalnia/kuchnia
28.2
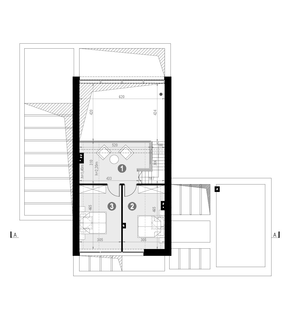
Rzut poddasza
1 sypialnia
10.11
2 antresola/komunikacja
15.2
3 sypialnia
10.2
przekrój
1 wysokość do okapu dachu
3.67
2 wysokość budynku
7.1

O autorze projektu HOMEKONCEPT 66 A G1

5 990 zł

Tylko u nas możesz negocjować cenę!
Skorzystaj z tej możliwości.

Lustrzane odbicie: dostępne.

Masz dodatkowe pytania?
Zadzwoń lub zamów rozmowę.

Zamów rozmowę

Pomożemy Ci dopasować do twoich potrzeb mymarzony projekt, wpisz swój numer telefonu nasz konsultant oddzwoni.

Negocjuj cenę projektu HOMEKONCEPT 66 A G1

Wersja projektu:

Zapytaj pytanie o projekt HOMEKONCEPT 66 A G1

Wersja projektu:

Oceny i komentarze

Napisz swoją opinię