Informujemy, iż nasz sklep internetowy wykorzystuje technologię plików cookies a jednocześnie nie zbiera w sposób automatyczny żadnych informacji, z wyjątkiem informacji zawartych w tych plikach (tzw. „ciasteczkach”).

HOMEKONCEPT 72 B

Lustrzane odbicie
  • Tylko online

Dane techniczne

powierzchnia
139.64 m²
wysokość
8.18 m
kąt dachu
35 °
szerokość działki
33.69 m
Liczba pokoi
6
Powierzchnia zabudowy
266.94
kondygnacje
parterowe
garaż
z garażem 1 st.
dach
dach dwuspadowy
kubatura
1596 m³
dostępne odbicie lustrzane
Tak
Pow. użytkowa
139.64 m²
długość działki
20.52 m
Liczba łazienek
2
Powierzchnia dachu
148 m²
Euco+w
25.37 kWh/m2 rok
Ep
69.79 kWh/m2 rok

Opis projektu

Rzuty

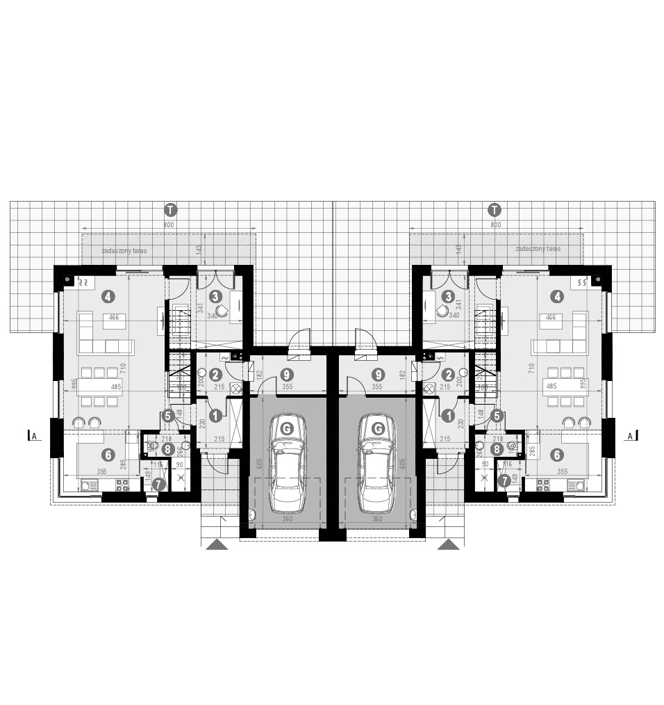
Rzut parteru
1 salon/jadalnia
33.37
2 taras
63.31
3 komunikacja
3.77
4 kotłownia/pralnia
4.1
5 kuchnia
10.12
6 pom. gospodarcze
6.46
7 gabinet
11.04
8 wiatrołap
4.95
9 toaleta
3.7
10 spiżarnia
1.73
11 garaż
21.6
Rzut poddasza
1 komunikacja
13.68
2 garderoba
3.5
3 balkon
8.64
4 sypialnia
8.27
5 sypialnia
8.5
6 sypialnia
12.28
7 sypialnia
8.71
8 łazienka
5.46
przekrój
1 wysokość do okapu dachu
4.17
2 wysokość budynku
8.18

O autorze projektu HOMEKONCEPT 72 B

9 990 zł

Tylko u nas możesz negocjować cenę!
Skorzystaj z tej możliwości.

Lustrzane odbicie: dostępne.

Masz dodatkowe pytania?
Zadzwoń lub zamów rozmowę.

Zamów rozmowę

Pomożemy Ci dopasować do twoich potrzeb mymarzony projekt, wpisz swój numer telefonu nasz konsultant oddzwoni.

Negocjuj cenę projektu HOMEKONCEPT 72 B

Wersja projektu:

Zapytaj pytanie o projekt HOMEKONCEPT 72 B

Wersja projektu:

Oceny i komentarze

Napisz swoją opinię