Informujemy, iż nasz sklep internetowy wykorzystuje technologię plików cookies a jednocześnie nie zbiera w sposób automatyczny żadnych informacji, z wyjątkiem informacji zawartych w tych plikach (tzw. „ciasteczkach”).

HOMEKONCEPT 65 A

Lustrzane odbicie
  • Tylko online

Dane techniczne

powierzchnia
53.67 m²
wysokość
6.89 m
kąt dachu
35 °
szerokość działki
17.19 m
Powierzchnia zabudowy
56.68
kondygnacje
parterowe
garaż
bez garażu
dach
dach dwuspadowy
kubatura
326 m³
dostępne odbicie lustrzane
Tak
Pow. użytkowa
53.67 m²
długość działki
16.75 m
Liczba łazienek
1
Powierzchnia dachu
90 m²
Euco+w
42.91 kWh/m2 rok
Ep
69.89 kWh/m2 rok

Opis projektu

Rzuty

Rzut parteru
1 taras
98.35
2 łazienka
6.35
3 salon/jadalnia
22.37
4 komunikacja
6.12
5 kuchnia
6.32
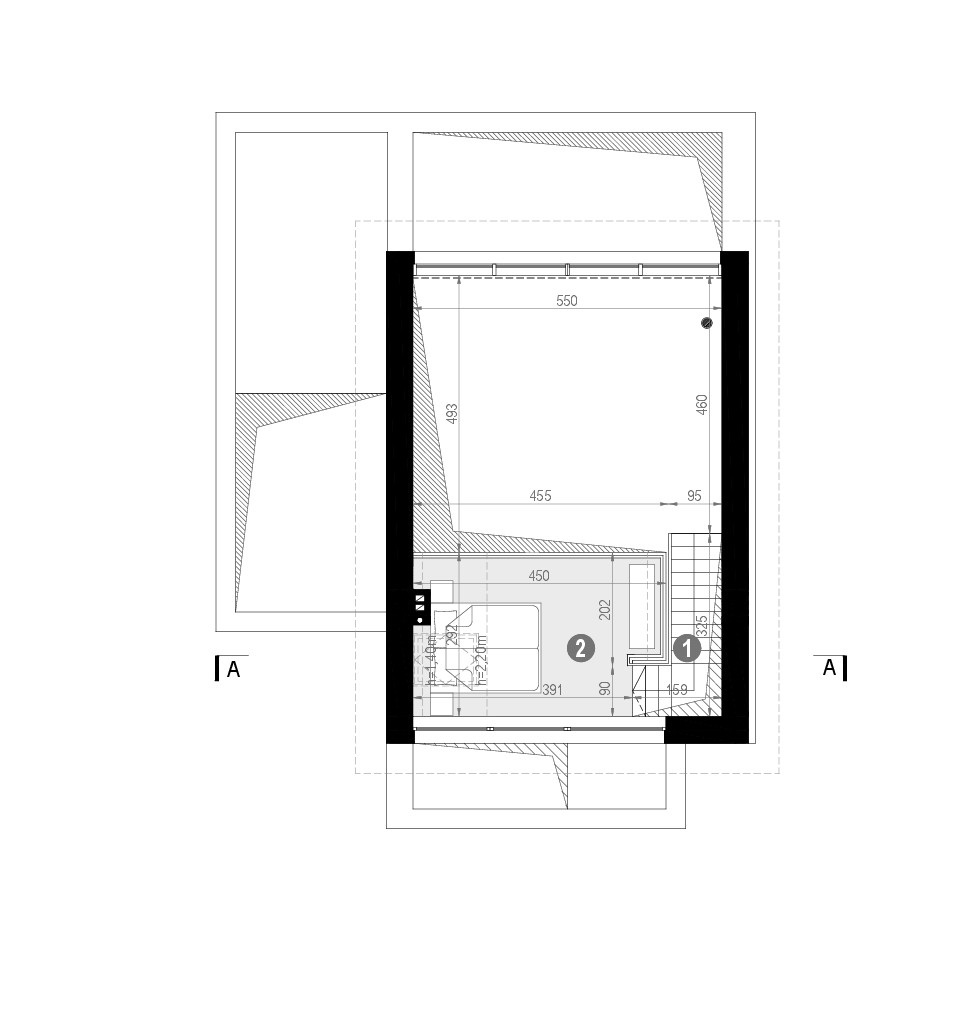
Rzut poddasza
1 antresola
10.02
2 komunikacja
2.49
przekrój
1 wysokość do okapu dachu
3.79
2 wysokość budynku
6.89

O autorze projektu HOMEKONCEPT 65 A

4 590 zł

Tylko u nas możesz negocjować cenę!
Skorzystaj z tej możliwości.

Lustrzane odbicie: dostępne.

Masz dodatkowe pytania?
Zadzwoń lub zamów rozmowę.

Zamów rozmowę

Pomożemy Ci dopasować do twoich potrzeb mymarzony projekt, wpisz swój numer telefonu nasz konsultant oddzwoni.

Negocjuj cenę projektu HOMEKONCEPT 65 A

Wersja projektu:

Zapytaj pytanie o projekt HOMEKONCEPT 65 A

Wersja projektu:

Oceny i komentarze

Napisz swoją opinię