Informujemy, iż nasz sklep internetowy wykorzystuje technologię plików cookies a jednocześnie nie zbiera w sposób automatyczny żadnych informacji, z wyjątkiem informacji zawartych w tych plikach (tzw. „ciasteczkach”).

HOMEKONCEPT 66 A

Lustrzane odbicie
  • Tylko online

Dane techniczne

powierzchnia
103.89 m²
wysokość
7.1 m
kąt dachu
35 °
szerokość działki
18.16 m
Liczba pokoi
3
Powierzchnia zabudowy
93.17
kondygnacje
parterowe
garaż
bez garażu
dach
dach dwuspadowy
kubatura
543 m³
dostępne odbicie lustrzane
Tak
Pow. użytkowa
103.89 m²
długość działki
21 m
Liczba łazienek
2
Powierzchnia dachu
143 m²
Euco+w
55.78 kWh/m2 rok
Ep
69.61 kWh/m2 rok

Opis projektu

Rzuty

Rzut parteru
1 komunikacja
8.45
2 toaleta
1.36
3 łazienka
5.6
4 wiatrołap
4.87
5 taras
9.25
6 pom. gospodarcze/pralnia
6.14
7 sauna
2.3
8 salon jadalnia/kuchnia
28.2
9 taras
118.95
10 sypialnia
11.46
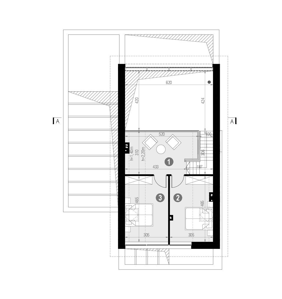
Rzut poddasza
1 sypialnia
10.11
2 sypialnia
10.2
3 antresola/komunikacja
15.2
przekrój
1 wysokość budynku
7.1
2 wysokość do okapu dachu
3.67

O autorze projektu HOMEKONCEPT 66 A

5 690 zł

Tylko u nas możesz negocjować cenę!
Skorzystaj z tej możliwości.

Lustrzane odbicie: dostępne.

Masz dodatkowe pytania?
Zadzwoń lub zamów rozmowę.

Zamów rozmowę

Pomożemy Ci dopasować do twoich potrzeb mymarzony projekt, wpisz swój numer telefonu nasz konsultant oddzwoni.

Negocjuj cenę projektu HOMEKONCEPT 66 A

Wersja projektu:

Zapytaj pytanie o projekt HOMEKONCEPT 66 A

Wersja projektu:

Oceny i komentarze

Napisz swoją opinię