Informujemy, iż nasz sklep internetowy wykorzystuje technologię plików cookies a jednocześnie nie zbiera w sposób automatyczny żadnych informacji, z wyjątkiem informacji zawartych w tych plikach (tzw. „ciasteczkach”).

HOMEKONCEPT 44 G1 Ytong

Lustrzane odbicie
  • Tylko online

Dane techniczne

powierzchnia
101.25 m²
wysokość
7.44 m
kąt dachu
35 °
szerokość działki
26.51 m
Liczba pokoi
4
Powierzchnia zabudowy
165.34
kondygnacje
parterowe
garaż
z garażem 1 st.
dach
dach dwuspadowy
kubatura
907 m³
dostępne odbicie lustrzane
Tak
Pow. użytkowa
101.25 m²
długość działki
16.79 m
Liczba łazienek
2
Powierzchnia dachu
206 m²
Euco+w
41.5 kWh/m2 rok
Ep
61.6 kWh/m2 rok

Opis projektu

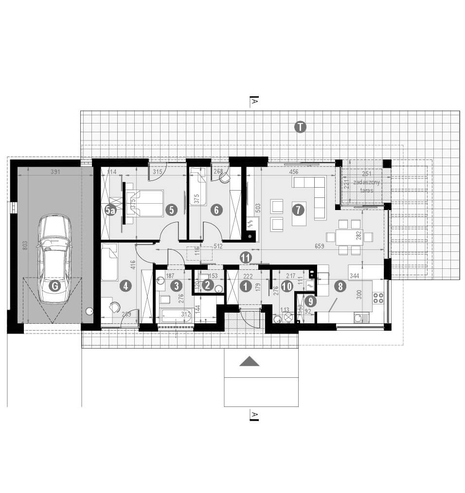
Rzuty

Rzut parteru
1 sypialnia
10.05
2 sypialnia
11.81
3 komunikacja
5.38
4 garderoba
4.28
5 spiżarnia
1.38
6 garaż
31.4
7 salon / jadalnia
29.73
8 kotłownia / pralnia
4.15
9 kuchnia
10.32
10 sypialnia
11.19
11 toaleta
1.84
12 wiatrołap
3.97
13 taras
76.5
14 łazienka
7.15
przekrój
1 wysokość budynku
7.44
2 wysokość do okapu
3.6

O autorze projektu HOMEKONCEPT 44 G1 Ytong

5 790 zł

Tylko u nas możesz negocjować cenę!
Skorzystaj z tej możliwości.

Lustrzane odbicie: dostępne.

Masz dodatkowe pytania?
Zadzwoń lub zamów rozmowę.

Zamów rozmowę

Pomożemy Ci dopasować do twoich potrzeb mymarzony projekt, wpisz swój numer telefonu nasz konsultant oddzwoni.

Negocjuj cenę projektu HOMEKONCEPT 44 G1 Ytong

Wersja projektu:

Zapytaj pytanie o projekt HOMEKONCEPT 44 G1 Ytong

Wersja projektu:

Oceny i komentarze

Napisz swoją opinię