Informujemy, iż nasz sklep internetowy wykorzystuje technologię plików cookies a jednocześnie nie zbiera w sposób automatyczny żadnych informacji, z wyjątkiem informacji zawartych w tych plikach (tzw. „ciasteczkach”).

HOMEKONCEPT 89

Lustrzane odbicie
  • Tylko online

Dane techniczne

powierzchnia
156.28 m²
wysokość
8.07 m
kąt dachu
35 °
szerokość działki
25.36 m
Liczba pokoi
7
Powierzchnia zabudowy
137.53
kondygnacje
parterowe
garaż
bez garażu
dach
dach dwuspadowy
kubatura
874 m³
dostępne odbicie lustrzane
Tak
Pow. użytkowa
156.28 m²
długość działki
15.9 m
Liczba łazienek
3
Powierzchnia dachu
192 m²
Euco+w
17.2 kWh/m2 rok
Ep
14 kWh/m2 rok

Opis projektu

Rzuty

Rzut parteru
1 kuchnia
9.14
2 jadalnia
8.6
3 spiżarnia
1.74
4 salon
27.04
5 gabinet
13.53
6 sypialnia
12.98
7 garderoba
5.63
8 taras
22.19
9 komunikacja
8.12
10 łazienka
3.77
11 łazienka
4.9
12 taras
40.1
13 wiatrołap
6.03
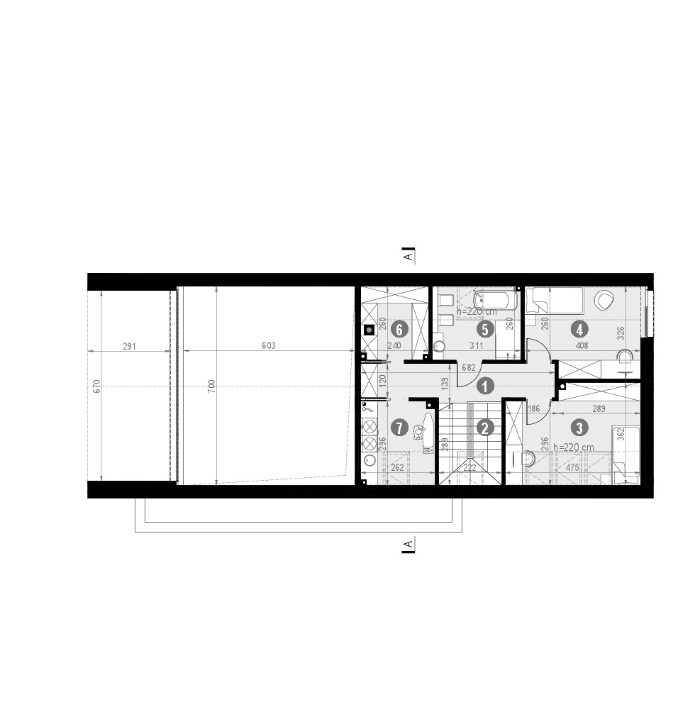
RZUT PODDASZA
1 pokój
10.03
2 schody
6.42
3 pralnia/kotłownia
6.06
4 komunikacja
8.61
5 garderoba
4.51
6 łazienka
6.17
7 pokój
13
przekrój
1 wysokość do okapu dachu
5.31
2 wysokość budynku
8.07

O autorze projektu HOMEKONCEPT 89

6 990 zł

Tylko u nas możesz negocjować cenę!
Skorzystaj z tej możliwości.

Lustrzane odbicie: dostępne.

Masz dodatkowe pytania?
Zadzwoń lub zamów rozmowę.

Zamów rozmowę

Pomożemy Ci dopasować do twoich potrzeb mymarzony projekt, wpisz swój numer telefonu nasz konsultant oddzwoni.

Negocjuj cenę projektu HOMEKONCEPT 89

Wersja projektu:

Zapytaj pytanie o projekt HOMEKONCEPT 89

Wersja projektu:

Oceny i komentarze

Napisz swoją opinię