Informujemy, iż nasz sklep internetowy wykorzystuje technologię plików cookies a jednocześnie nie zbiera w sposób automatyczny żadnych informacji, z wyjątkiem informacji zawartych w tych plikach (tzw. „ciasteczkach”).

HOMEKONCEPT 91 wariant 01

Lustrzane odbicie
  • Tylko online

Dane techniczne

powierzchnia
151.31 m²
wysokość
7.24 m
kąt dachu
35 °
szerokość działki
29.62 m
Liczba pokoi
5
Powierzchnia zabudowy
169.76
kondygnacje
parterowe
garaż
z garażem 2 st.
dach
dach dwuspadowy
kubatura
922.43 m³
dostępne odbicie lustrzane
Tak
Pow. użytkowa
151.31 m²
długość działki
16.71 m
Liczba łazienek
2
Powierzchnia dachu
151 m²
Euco+w
24.9 kWh/m2 rok
Ep
63.8 kWh/m2 rok

Opis projektu

Rzuty

Rzut parteru
1 garaż
41.17
2 kotłownia
3.64
3 salon
19.86
4 spiżarnia
3.14
5 taras
29.32
6 jadalnia
12.09
7 komunikacja
6.88
8 taras
58.63
9 łazienka
5.13
10 gabinet/pok. gościnny
14.81
11 wiatrołap
6.42
12 kuchnia
11.79
13 garderoba
3.04
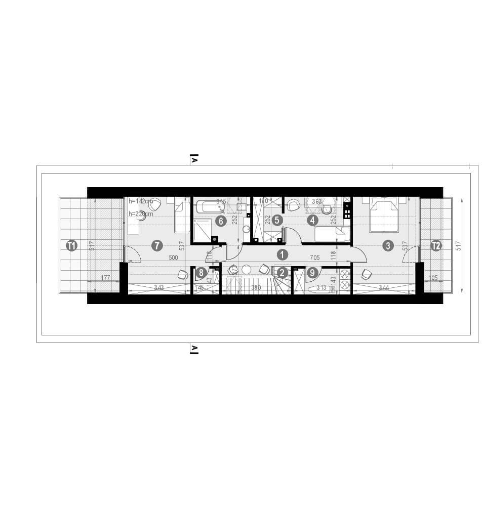
Rzut poddasza
1 sypialnia
16.45
2 taras
7.73
3 garderoba
3
4 łazienka
5.94
5 sypialnia
14.62
6 sypialnia
6.9
7 taras
16.91
8 schody
4.08
9 garderoba
1.24
10 komunikacja
9.57
11 pralnia
2.71
przekrój
1 wysokość budynku
7.24
2 wysokość do okapu dachu
5.01

O autorze projektu HOMEKONCEPT 91 wariant 01

6 790 zł

Tylko u nas możesz negocjować cenę!
Skorzystaj z tej możliwości.

Lustrzane odbicie: dostępne.

Masz dodatkowe pytania?
Zadzwoń lub zamów rozmowę.

Zamów rozmowę

Pomożemy Ci dopasować do twoich potrzeb mymarzony projekt, wpisz swój numer telefonu nasz konsultant oddzwoni.

Negocjuj cenę projektu HOMEKONCEPT 91 wariant 01

Wersja projektu:

Zapytaj pytanie o projekt HOMEKONCEPT 91 wariant 01

Wersja projektu:

Oceny i komentarze

Napisz swoją opinię