Informujemy, iż nasz sklep internetowy wykorzystuje technologię plików cookies a jednocześnie nie zbiera w sposób automatyczny żadnych informacji, z wyjątkiem informacji zawartych w tych plikach (tzw. „ciasteczkach”).

HOMEKONCEPT 89 G2

Lustrzane odbicie
  • Tylko online

Dane techniczne

powierzchnia
203.93 m²
kąt dachu
35 °
szerokość działki
25.36 m
Liczba pokoi
8
Powierzchnia zabudowy
243.86
kondygnacje
parterowe
garaż
z garażem 2 st.
dach
dach dwuspadowy
kubatura
1345.7 m³
dostępne odbicie lustrzane
Tak
Pow. użytkowa
203.93 m²
długość działki
24.26 m
Liczba łazienek
5
Powierzchnia dachu
192 m²
Euco+w
32.8 kWh/m2 rok
Ep
65.9 kWh/m2 rok

Opis projektu

Rzuty

Rzut parteru
1 pokój spa
26.87
2 taras / utwardzenie
40.1
3 toaleta
2.57
4 gabinet
13.53
5 wiatrołap
9.66
6 spiżarnia
1.74
7 garaż
41.54
8 łazienka
3.77
9 garderoba
5.63
10 prysznic
1.8
11 salon
27.04
12 garderoba
7.78
13 kuchnia
9.14
14 jadalnia
8.6
15 łazienka
4.9
16 komunikacja
8.12
17 sypialnia
12.98
18 sauna
5
19 taras drewniany
30.22
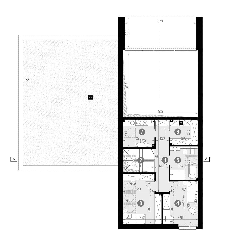
Rzut poddasza
1 pokój
10.03
2 garderoba
4.51
3 schody
6.42
4 pokój
13
5 pralnia / kotłownia
6.06
6 komunikacja
8.61
7 łazienka
6.17
Przekrój
1 wysokość budynku
8.07
2 wysokość do okapu dachu
5.31

O autorze projektu HOMEKONCEPT 89 G2

7 990 zł

Tylko u nas możesz negocjować cenę!
Skorzystaj z tej możliwości.

Lustrzane odbicie: dostępne.

Masz dodatkowe pytania?
Zadzwoń lub zamów rozmowę.

Zamów rozmowę

Pomożemy Ci dopasować do twoich potrzeb mymarzony projekt, wpisz swój numer telefonu nasz konsultant oddzwoni.

Negocjuj cenę projektu HOMEKONCEPT 89 G2

Wersja projektu:

Zapytaj pytanie o projekt HOMEKONCEPT 89 G2

Wersja projektu:

Oceny i komentarze

Napisz swoją opinię