- Tylko online
Masz pytania? Chciałbyś negocjować cenę
Zadzwoń! 577 575 011
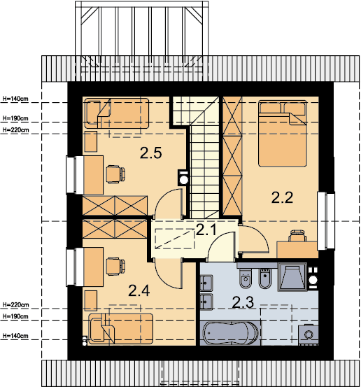
Niewielki domek z poddaszem użytkowym o powierzchni zabudowy nie przekraczającej 70 m², którego niewątpliwym atutem jest prosta bryła i nieskomplikowany dach, co z pewnością wpłynie na ekonomiczne koszty budowy i późniejszej eksploatacji. Dzięki funkcjonalnej organizacji wnętrza i efektywnie wykorzystanej przestrzeni, ten przytulny dom w cenie mieszkania posiada program użytkowy charakterystyczny dla dużo większych budynków. Na parterze zmieścił się salon wraz z otwartą kuchnią, wiatrołap, łazienka, dodatkowy pokój oraz spora kotłownia, w której zaprojektowano dwa rodzaje ogrzewania: GAZOWE oraz na PALIWO STAŁE (projekt zawiera schematy i rozwinięcia instalacji c.o. i elektrycznych, obydwu sposobów ogrzewania). Inwestor sam zadecyduje, które z nich wykorzysta w swoim domu. Centralnie położony kominek w salonie może się natomiast przydać zimą, jako dodatkowe źródło ogrzewania. W pokoju dziennym znalazły się też schody prowadzące na piętro, które jest typową strefą nocną. Do dyspozycji mieszkańców są tu 3 ustawne pokoje, w tym spora sypialnia rodziców z miejscem na ciąg praktycznych szaf przesuwnych oraz łazienka, która pomieści wannę, prysznic i pralkę. Dzięki wysokiej ściance kolankowej maksymalnie wykorzystana została przestrzeń pod skosami. Elewację budynku można wykończyć zarówno w tradycyjnym, jak i nowoczesnym stylu. Elegancji całości dodaje natomiast pergola znajdująca się od strony ogrodowej. Przy projektowaniu domu Amigo nie zapomnieliśmy o ekologii. Dokumentacja projektowa zawiera alternatywną wentylację mechaniczną, a dzięki zastosowanym materiałom cały budynek ma minimalny wpływ na środowisko naturalne i spełnia wszystkie rygorystyczne wymogi współczesnego projektowania.
Uwaga! Dokumentacja Projektowa nie zawiera elementów małej architektury takich jak: donice, podesty, altany, grille ogrodowe, murki, pergole, a także innych elementów wizualizacji, takich jak: garaże i wiaty wolnostojące, drogi, podjazdy, ogrodzenia, baseny itp.
