- Tylko online
Masz pytania? Chciałbyś negocjować cenę
Zadzwoń! 577 575 011
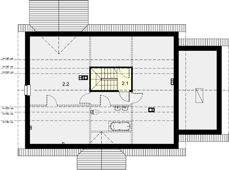
Mały, urokliwy dom parterowy z garażem i możliwością adaptacji poddasza. Jest to pomniejszona wersja projektu Tamara. Wejście do budynku zaakcentowano gustownym daszkiem wspartym na dwóch filarach, takie samo zadaszenie zastosowano od strony ogrodowej, nadając całej bryle domu spójności i klasycznego wyglądu. Do wnętrza dostajemy się przez wiatrołap, który otwiera się na przestronną część komunikacyjną. W holu znajduje się wejście do sporej łazienki, w której jest miejsce na wannę i prysznic. Strefa dzienna to duży, dobrze oświetlony salon połączony z kuchnią, którą w razie potrzeby można oddzielić ścianką działową. Do dyspozycji mieszkańców są 3 ustawne pokoje. Z prawej strony budynku zlokalizowano część gospodarczą domu – pralnię przez którą dostaniemy się do garażu i kotłownię, w której zaprojektowano 2 rodzaje ogrzewania: gazowe oraz na paliwo stałe – biomasę. Dzięki takiemu rozwiązaniu, projektu nie trzeba przerabiać, Inwestor sam decyduje, który rodzaj ogrzewania zastosuje w swoim domu - dokumentacja zawiera schematy i rozwinięcia instalacji c.o. i elektrycznych, obydwu sposobów ogrzewania. Prawdziwym atutem projektu są jednak schody znajdujące się w korytarzu. Dostaniemy się dzięki nim na strych nieużytkowy, który na etapie adaptacji można zamienić na pokój hobby, pracownie lub po prostu na dodatkowe pomieszczenia mieszkalne. Zaletą takiego rozwiązania jest także to, że adaptacji poddasza można dokonać w późniejszym czasie, mieszkając już w domu. W projekcie zastosowano sprawdzone rozwiązania, a budynek posiada nieskomplikowaną formę i prosty dach, co ma duży wpływ na obniżenie kosztów budowy i późniejszej eksploatacji.
Uwaga! Dokumentacja Projektowa nie zawiera elementów małej architektury takich jak: donice, podesty, altany, grille ogrodowe, murki, pergole, a także innych elementów wizualizacji, takich jak: garaże i wiaty wolnostojące, drogi, podjazdy, ogrodzenia, baseny itp.
