- Tylko online
Masz pytania? Chciałbyś negocjować cenę
Zadzwoń! 577 575 011
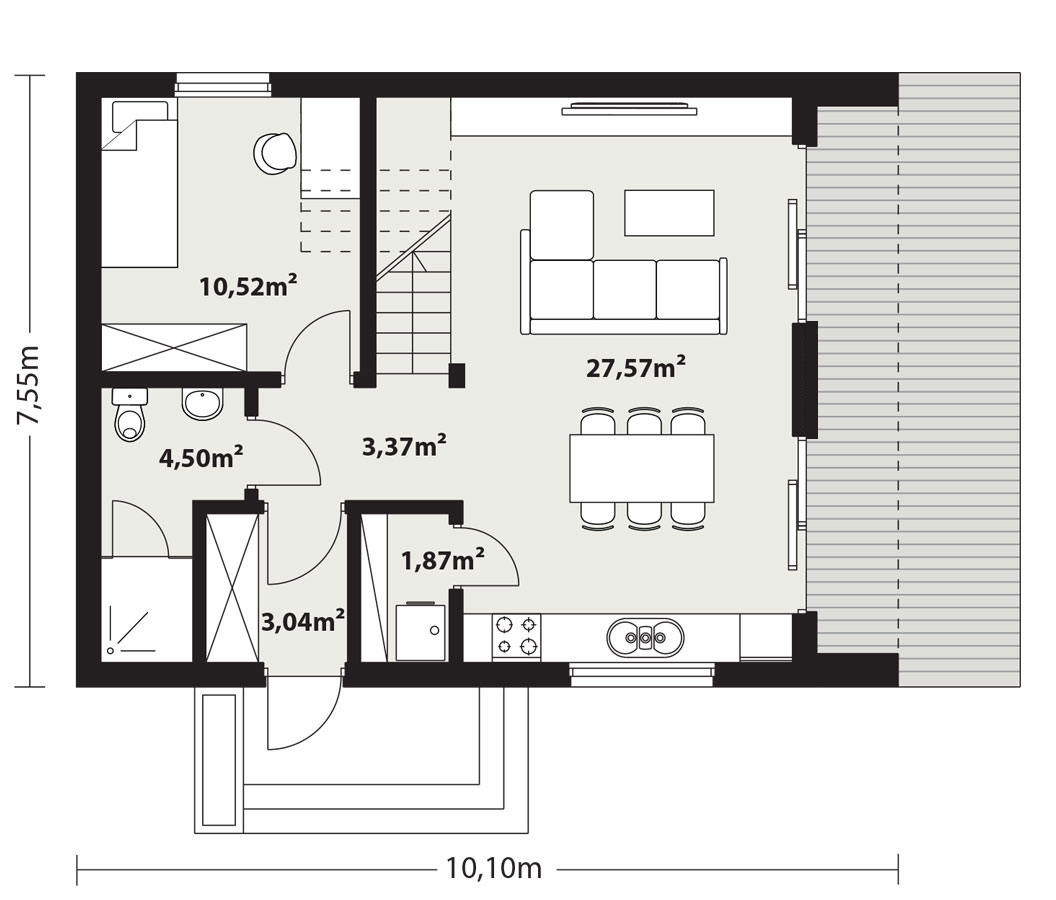
Zuza drewniana to projekt niedużego domu parterowego z użytkowym poddaszem, który wpisuje się w nurt nowoczesnej architektury. Pomimo niewielkich rozmiarów projekt ten zapewnia pełen komfort mieszkania nawet 4-osobowej rodzinie. To niewielki dom parterowy o idealnie rozplanowanym układzie funkcjonalnym i nowoczesnym wyglądzie. Zuza drewniana to projekt domu, który posiada powierzchnię zabudowy do 70 m2. Prosta, minimalistyczna bryła na rzucie prostokąta, dwuspadowy, bezokapowy dach oraz powierzchnia zabudowy nie przekraczająca 70m2 to gwarancja niewielkich kosztów budowy. W kształtowaniu nowoczesnego wyglądu domu uwagę przykuwa blacha na rąbek w kolorze antracytowym zestawiona z ciepłym naturalnym i ciemnym drewnem. Duże przeszklenia pozwalają na wprowadzenie do wnętrza dużych ilości naturalnego światła, co nie tylko sprawia, że pomieszczenia są jaśniejsze, ale także umożliwia cieszenie się widokiem otaczającego krajobrazu. Pomimo ograniczonej powierzchni użytkowej, układ funkcjonalny został starannie rozplanowany. Parter stanowi strefę dzienną z otwartą przestrzenią salonu, jadalni i kuchni. Dodatkowy pokój na parterze może pełnić różne funkcje, zależnie od potrzeb mieszkańców. Na parterze przewidziano również łazienkę oraz pomieszczenie gospodarcze, w którym zaprojektowano pompę ciepła. Na poddaszu zaprojektowano trzy funkcjonalne sypialnie, łazienkę oraz pralnię. Optymalne wykorzystanie przestrzeni na poddaszu umożliwia komfortowe warunki dla mieszkańców. Dom o takich gabarytach to oczywiście niższe koszty zarówno w fazie budowy, jak i w trakcie późniejszej eksploatacji. Mniejsza powierzchnia zabudowy oznacza także możliwość zakupu mniejszej działki, co może wpływać na korzystniejszy wybór lokalizacji. Projekt domu Zuza drewniana to doskonałe połączenie nowoczesnego designu, funkcjonalności oraz zrównoważonego podejścia do zagadnień budowlanych, co sprawia, że stanowi on atrakcyjną opcję dla tych, którzy cenią sobie komfort życia w mniejszych, nowoczesnych domach.
