- Tylko online
Masz pytania? Chciałbyś negocjować cenę
Zadzwoń! 577 575 011
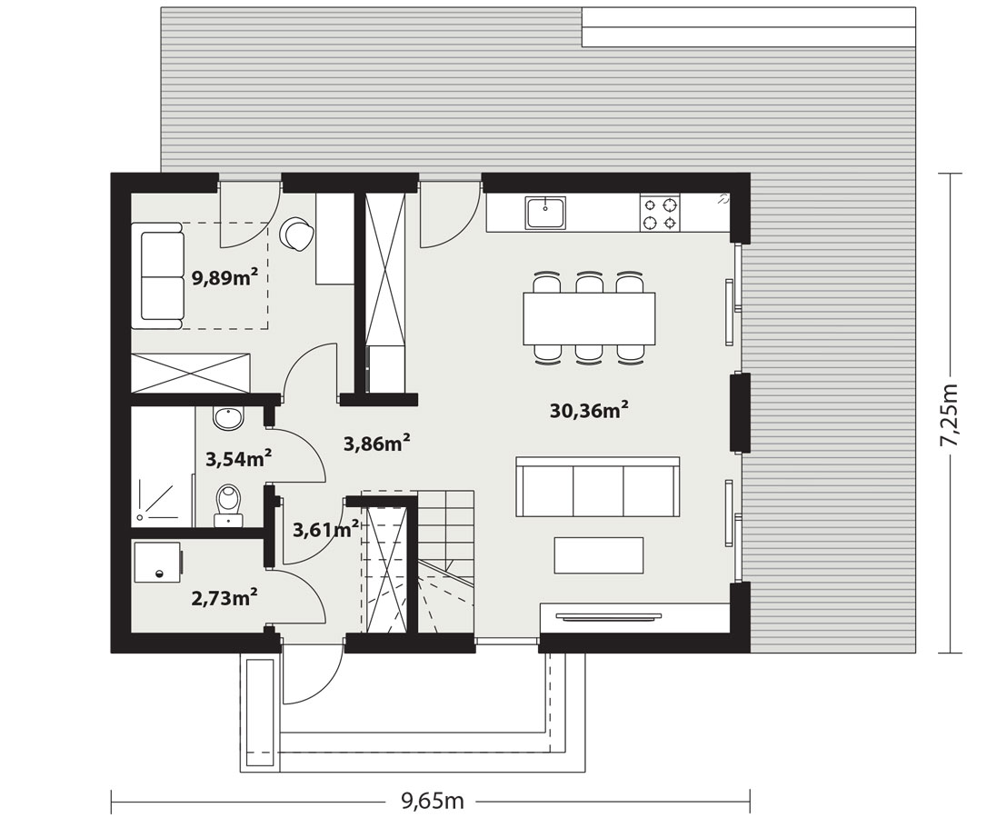
Helen drewniana to projekt domu parterowego z użytkowym poddaszem, który wpisuje się w nurt nowoczesnej architektury. Zaprojektowany w technologii szkieletu drewnianego. Pomimo niewielkich rozmiarów projekt ten zapewni pełen komfort mieszkania nawet 4-osobowej rodzinie. To niewielki dom parterowy o idealnie rozplanowanym układzie funkcjonalnym i nowoczesnym wyglądzie. Minimalistyczna bryła, dwuspadowy dach oraz powierzchnia użytkowa nie przekraczająca 90 m2 to gwarancja niewielkich kosztów budowy. To projekt nie tylko tani i łatwy w budowie, ale również niezwykle funkcjonalny. Bryła budynku jest na rzucie prostokąta, co pozwala na optymalne wykorzystanie przestrzeni wewnątrz domu, co jest szczególnie ważne w przypadku niewielkich działek. Dom wykończono w nowoczesnym stylu. Uwagę przykuwa blacha na rąbek w kolorze antracytowym oraz ciemna płytka elewacyjna i stolarka, które zestawiono z panelami w kolorze naturalnego drewna. Zastosowane materiały nadają nieco surowego ale również oryginalnego charakteru. Duże, przeszklenia pozwalają na wprowadzenie do wnętrza dużych ilości naturalnego światła, co nie tylko sprawia, że pomieszczenia są jaśniejsze, ale także umożliwia cieszenie się widokiem otaczającego krajobrazu. Pomimo ograniczonej powierzchni użytkowej, układ funkcjonalny został starannie rozplanowany. Parter stanowi strefę dzienną z otwartą przestrzenią salonu, jadalni i kuchni. Otwarta przestrzeń to doskonałe miejsce do wspólnego spędzania czasu z rodziną. Dodatkowy pokój na parterze może pełnić różne funkcje, zależnie od potrzeb mieszkańców. Na parterze przewidziano również łazienkę oraz pomieszczenie gospodarcze, w którym zaprojektowano pompę ciepła. Na poddaszu zaprojektowano trzy funkcjonalne sypialnie, łazienkę oraz pralnię. Optymalne wykorzystanie przestrzeni na poddaszu umożliwia komfortowe warunki dla mieszkańców. Niewątpliwą zaletą projektu jest duży taras zaprojektowany w kształcie litery L. Taras okala dom z dwóch stron, dzięki czemu jest bardziej funkcjonalny. Helen drewniana to projekt domu, który posiada powierzchnię zabudowy do 70 m2. Daje to możliwość jego budowy na zgłoszenie. Budowa taka nie będzie również wymagała kierownika budowy oraz prowadzenia dziennika budowy. Dom o takich gabarytach to oczywiście niższe koszty zarówno w fazie budowy, jak i w trakcie późniejszej eksploatacji. Mniejsza powierzchnia zabudowy oznacza także możliwość zakupu mniejszej działki, co może wpływać na korzystniejszy wybór lokalizacji. Projekt domu Helen drewniana to doskonałe połączenie nowoczesnego designu, funkcjonalności oraz zrównoważonego podejścia do zagadnień budowlanych, co sprawia, że stanowi on atrakcyjną opcję dla tych, którzy cenią sobie komfort życia w mniejszych, nowoczesnych domach.
