Masz pytania? Chciałbyś negocjować cenę
Zadzwoń! 577 575 011
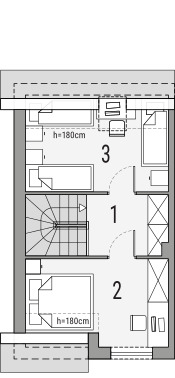
Na dole przewidziano salon z aneksem kuchennym, a na górze dwie sypialnie. Jest to projekt domu letniskowego lub całorocznego. Ma dwa możliwe warianty ogrzewania: elektryczne z funkcją podtrzymania temperatury minimalnej podczas nieobecności właściciela oraz piec gazowy w łazience. Projekt domu można swobodnie łączyć w zabudowie szeregowej różnym zestawieniem segmentów.
