- Tylko online
Masz pytania? Chciałbyś negocjować cenę
Zadzwoń! 577 575 011
Ten projekt to połączenie nowoczesnej estetyki i maksymalnej praktyczności, dostosowane do potrzeb dwóch rodzin lub właścicieli poszukujących domu z niezależnymi lokalami. Styl nowoczesnej stodoły, który wyróżnia prostą, lecz wyrazistą bryłę, został tutaj perfekcyjnie zaadaptowany dla bliźniaczego układu. Elewacja łączy biel z drewnianymi akcentami, a harmonijne przeszklenia wypełniają wnętrza obu lokali naturalnym światłem. Dodatkowe atuty, takie jak panele fotowoltaiczne, podkreślają ekologiczny charakter projektu, idealny dla osób dbających o środowisko i niższe koszty utrzymania.
Każdy z dwóch lokali oferuje perfekcyjnie rozplanowaną przestrzeń. Na parterze znajduje się przestronny salon z wielkimi przeszkleniami, połączony z jadalnią i otwartą kuchnią – to miejsce spotkań, które tętni życiem. Dodatkowy pokój na tym poziomie może pełnić funkcję sypialni, gabinetu lub pokoju gościnnego, dostosowując się do indywidualnych potrzeb mieszkańców. Każdy lokal posiada osobne wejście, gwarantując mieszkańcom pełną niezależność i poczucie prywatności.
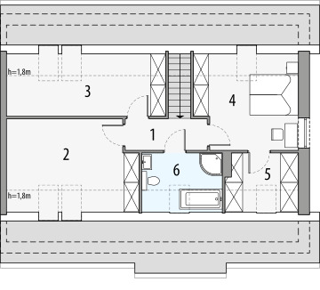
Poddasze każdego lokalu to azyl dla domowników. Przemyślany układ trzech pokoi, w tym głównej sypialni z garderobą, zapewnia komfort i funkcjonalność. Znajduje się tam również przestronna łazienka, a dodatkowa powierzchnia korytarza tworzy wrażenie przestrzeni i harmonii. Całość projektu została zaprojektowana z myślą o wygodzie i estetyce, dzięki czemu każdy lokal w tym domu może stać się wymarzonym miejscem dla swojej rodziny.
Dom bliźniaczy w stylu nowoczesnej stodoły to idealne rozwiązanie dla osób poszukujących harmonii między elegancją a funkcjonalnością, oferując jednocześnie możliwość współdzielenia przestrzeni z rodziną lub inwestycję w niezależne lokale.
