- Tylko online
- Nowy
Masz pytania? Chciałbyś negocjować cenę
Zadzwoń! 577 575 011
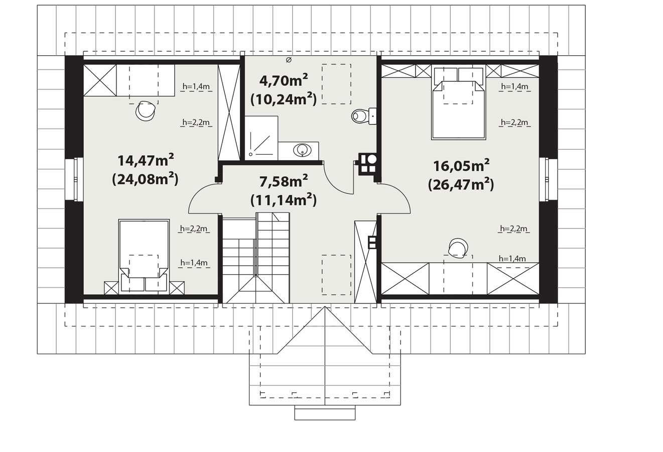
Surażkowo 3 to projekt niedużego domu z użytkowym poddaszem nawiązującego stylem do tradycyjnych podlaskich domów. Posiada na parterze dwie sypialnie, otwartą część dzienną, łazienkę oraz pomieszczenie techniczne. Na poddaszu zlokalizowano dodatkowe dwie sypialnie i łazienkę. Wszystkie wewnętrzne ściany parteru i poddasza są działowe co pozwala na wiele sposobów ich aranżowania. Wejście do domu jest przez zadaszony ganek-werandę. Dom standardowo wyposażony jest w pompę ciepła oraz kominek.
