- Tylko online
- Nowy
Masz pytania? Chciałbyś negocjować cenę
Zadzwoń! 577 575 011
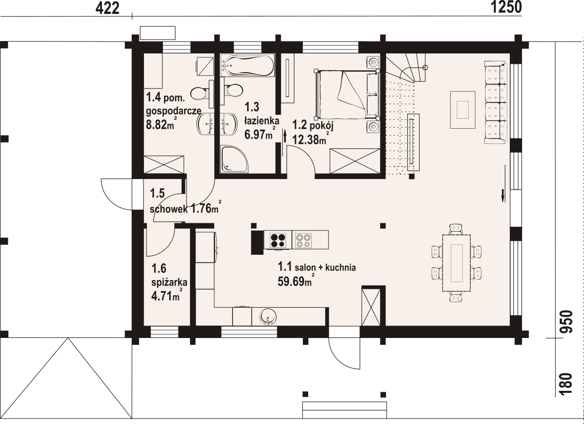
Projekt domu z bali, łączący w sobie klasyczną architekturę drewnianą z nowoczesnym, wygodnym programem funkcjonalnym. Na parterze duża, otwarta kuchnia z wyspą i dostępem do spiżarki oraz salon i jadalnia z antresolą. Ponadto wygodna sypialnia z własną łazienką. Program parteru uzupełnia praktyczny schowek z dostępem z ogrodu i pomieszczenie gospodarcze. Na poddaszu dwa pokoje, garderoba i łazienka.
