- Tylko online
- Nowy
Masz pytania? Chciałbyś negocjować cenę
Zadzwoń! 577 575 011
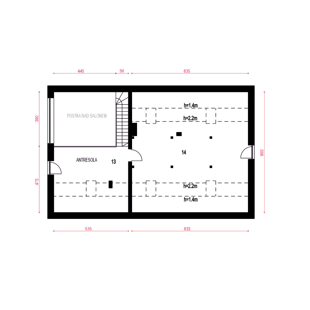
Lena to nowoczesny dom z poddaszem do adaptacji, wyróżniający się prostą bryłą, dużymi przeszkleniami i elegancką białą elewacją ze szarą dachówką. Na parterze zaplanowano trzy sypialnie oraz przestronną strefę dzienną z salonem, kuchnią i jadalnią z wyjściem na taras. Dodatkowo przewidziano łazienkę, wc, spiżarnię, pomieszczenie techniczne i wygodne wejście z miejscem na szafy. Poddasze pozostaje otwarte na aranżację – można tam stworzyć dodatkowe pokoje, łazienkę, gabinet lub przestrzeń rekreacyjną. Dom łączy nowoczesny wygląd z funkcjonalnością i dbałością o środowiskofundamenty: BETONOWE ściany zewnętrzne: POROTHERM+STYROPIAN TERMO ORGANIKA ściany wewnętrzne: POROTHERM rodzaj stropu: TERIVA elewacje: TYNK STRUKTURALNY pokrycie dachu: DACHÓWKA CERAMICZNA
