- Tylko online
- Nowy
Masz pytania? Chciałbyś negocjować cenę
Zadzwoń! 577 575 011
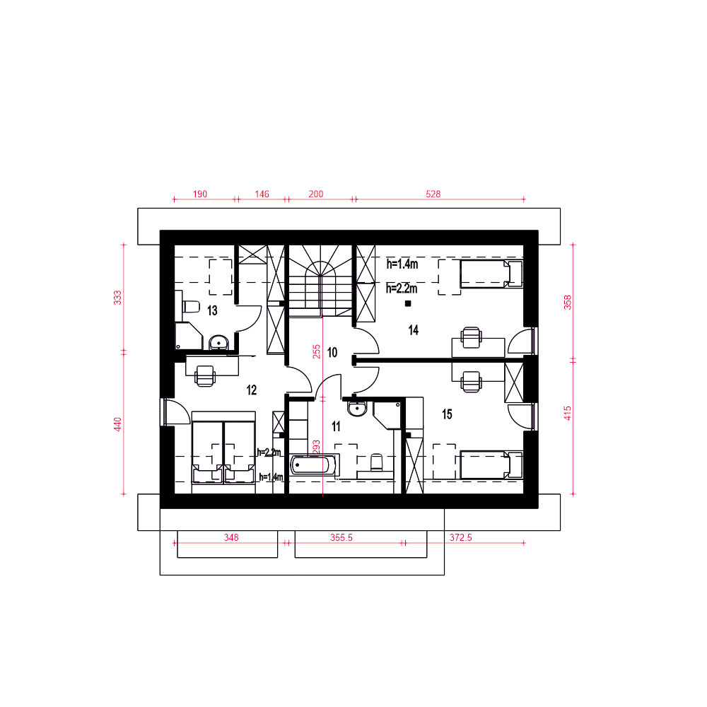
Karla to nowoczesny i funkcjonalny projekt domu jednorodzinnego z poddaszem użytkowym, przeznaczony dla 4–5-osobowej rodziny. Zwarta bryła, dwuspadowy dach i stonowana elewacja z jasnego tynku i klinkieru łączą elegancję z ekonomią budowy. Zadaszone wejście podkreśla prostą, nowoczesną formę. Na parterze zaplanowano przestronną strefę dzienną z salonem, jadalnią i kuchnią oraz kominkiem w centralnym punkcie. Dodatkowy pokój może pełnić funkcję gabinetu lub sypialni gościnnej. Przewidziano też WC, garderobę pod schodami oraz dostęp do garażu i pomieszczenia technicznego. Poddasze to trzy sypialnie, w tym jedna z własną łazienką, oraz wspólna, przestronna łazienka z wanną i prysznicem. Projekt Karla harmonijnie łączy nowoczesność z naturalnymi akcentami. Dzięki dużym przeszkleniom wnętrza są jasne i otwarte na ogród, a prosta forma budynku pasuje zarówno do krajobrazu wiejskiego, jak i podmiejskiego.fundamenty: BETONOWE ściany zewnętrzne: POROTHERM+STYROPIAN TERMO ORGANIKA ściany wewnętrzne: POROTHERM rodzaj stropu: TERIVA elewacje: TYNK STRUKTURALNY, KLINKIER pokrycie dachu: DACHÓWKA CERAMICZNA
