- Tylko online
- Nowy
Masz pytania? Chciałbyś negocjować cenę
Zadzwoń! 577 575 011
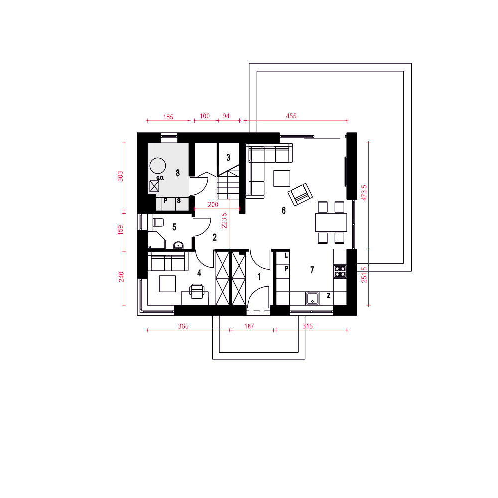
Hazi to nowoczesny, kompaktowy dom jednorodzinny z dwuspadowym dachem bez okapów, przeznaczony dla 4-osobowej rodziny. Prosta i elegancka bryła łączy estetykę współczesnej architektury z funkcjonalnością. Na parterze znajduje się przestronny salon z otwartą kuchnią i jadalnią, dodatkowy pokój (np. gabinet lub sypialnia), łazienka z prysznicem oraz pomieszczenie techniczne. Duże przeszklenia łączą wnętrze z ogrodem i tarasem, tworząc przyjazną przestrzeń do wypoczynku. Na poddaszu zaplanowano trzy sypialnie (dwie z garderobami) oraz łazienkę. Hazi to dom ekologiczny, łatwy w budowie i ekonomiczny w użytkowaniu – idealny dla rodzin ceniących wygodę, nowoczesność i rozsądne koszty.fundamenty: BETONOWE ściany zewnętrzne: POROTHERM+STYROPIAN TERMO ORGANIKA ściany wewnętrzne: POROTHERM rodzaj stropu: TERIVA elewacje: TYNK STRUKTURALNY, OKŁADZINA DREWNOPODOBNA pokrycie dachu: DACHÓWKA CERAMICZNA
