- Tylko online
Masz pytania? Chciałbyś negocjować cenę
Zadzwoń! 577 575 011
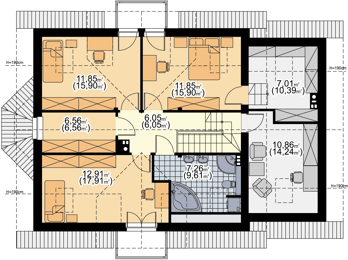
Projekt klasycznego domu z dwuspadowym dachem, w którym wygonie zamieszka 4-5 osobowa rodzina. Do dyspozycji mieszkańców jest duża otwarta kuchnia (w razie potrzeby można ją zamknąć ścianką działową). Nie zapomniano w niej o miejscu pod zabudowę sprzętem AGD i praktycznej spiżarni. Duży, przestronny salon z ciekawym wykuszem jadalnym jest doskonałym miejscem wypoczynku w ciągu dnia, a centralne położenie kominka nadaje całości przytulnego charakteru i doskonale sprawdzi się podczas ogrzewania domu w zimie. Bezpośrednio z pokojem dziennym sąsiaduje dodatkowy pokój, który może pełnić funkcję gabinetu lub pokoju gościnnego. Do garażu dostajemy się przez praktyczne pomieszczenie gospodarcze, w pobliżu którego znalazła się niewielka łazienka. Za garażem znajduje się kotłownia, z bezpośrednim wyjściem na ogród. Jej duża powierzchnia pozwala rozważać inny sposób ogrzewania niż gazowe. Poddasze to typowa strefa nocna. Znajdują się tu 3 ustawne pokoje, duża łazienka oraz dodatkowa garderoba. W razie potrzeby garderobę można połączyć z jednym z przylegających do niej pokojów lub zaadaptować ją na pralnię. Prawdziwą zaletą jest jednak pomieszczenie znajdujące się nad garażem. Zostało ono podzielone na dwie części. Do jednej dostajemy się wprost z pokoju rodziców i może ona stanowić, dodatkową garderobę. Drugą część, dostępną z klatki schodowej, można przerobić na gabinet, pokój hobby, lub po prostu dodatkowe pomieszczenie mieszkalne. Pomieszczenia te mogą być też połączone, tworząc jedno duże. Dom ma nieskomplikowaną bryłę i prosty dach, dzięki czemu będzie tani w budowie i późniejszej eksploatacji.
Uwaga! Dokumentacja Projektowa nie zawiera elementów małej architektury takich jak: donice, podesty, altany, grille ogrodowe, murki, pergole, a także innych elementów wizualizacji, takich jak: garaże i wiaty wolnostojące, drogi, podjazdy, ogrodzenia, baseny itp.
