- Tylko online
Masz pytania? Chciałbyś negocjować cenę
Zadzwoń! 577 575 011
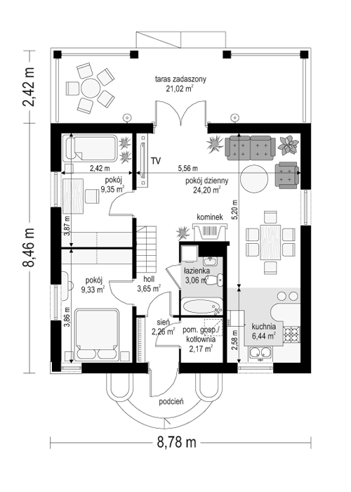
Projekt domu Ambrozja to domek dla 3- 4-osobowej rodziny, mogący służyć zarówno jako domek całoroczny jak i domek letniskowy. Wnętrze projektu domu Ambrozja ukształtowano z podziałem na część ogólną, dzienną - z salonem oraz część prywatną, nocną z dwoma sypialniami i łazienką na parterze oraz dwa pomieszczenia na poddaszu mogące pełnić funkcję sypialni. Pracownia MG Projekt posiada wersję projektu domu Ambrozja z kotłownią w pomieszczeniu gospodarczym, wariant z garażem z boku domu, wersję w technologii szkieletu drewnianego oraz odbicie lustrzanego projektu.
